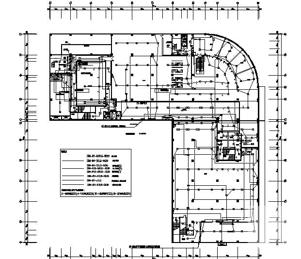
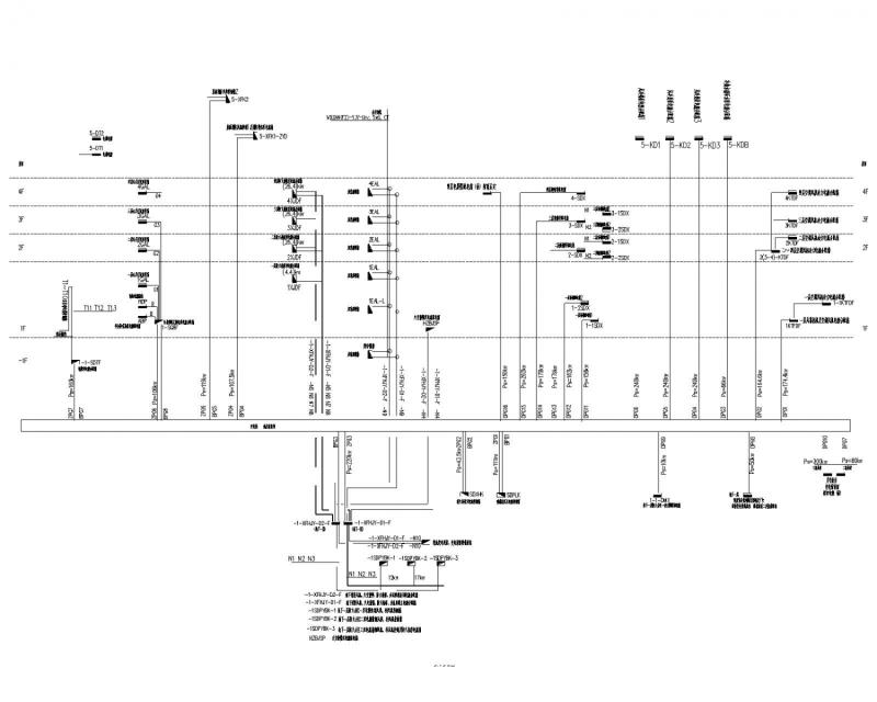
4层商业楼电气CAD施工图纸(火灾自动报警)
- 发布时间:2022-10-29
- 评论次数:0
- 浏览次数:0
- 文件大小:5.64 MB
- 收藏次数:0
- 
								文件名称: 附件-995855796775857680970.zip 附件-995855796775857680970.zip
								相关下载
							
						- 住宅小区商业楼电气设计CAD施工图纸(火灾自动报警)
- 仓库消防电气CAD施工图纸(火灾自动报警)
- 下车库电气CAD施工图纸(火灾自动报警)
- 下车库电气CAD施工图纸(火灾自动报警)
- 下车库电气CAD施工图纸(火灾自动报警)
- 车库工程电气施工方案(火灾自动报警)
- 4层大型商业楼电气CAD施工图纸(一级负荷)(火灾自动报警)
- 地上18层商业楼电气CAD施工图纸(甲级设计院)(火灾自动报警)
- 高层商业楼消防电气设计CAD施工图纸(火灾自动报警系统)
- 超市消防电气CAD图纸(火灾自动报警系统)
- 健身广场消防电气CAD图纸(火灾自动报警)
- 5层科研楼电气CAD图纸(火灾自动报警)
- 高层宾馆电气全套CAD图纸(火灾自动报警设计)
- 火灾自动报警系统CAD图纸
- 大厦消防CAD图纸(火灾自动报警)()
- 建筑全套火灾自动报警CAD图纸
- 5层图纸书馆电气CAD施工图纸(火灾自动报警系统)
- 医院门诊部改建电气施工图纸火灾自动报警平面图
- 两层公司室内装修工程电气CAD施工图纸(火灾自动报警)
- 地上18层星级酒店电气CAD施工图纸(裙房)(火灾自动报警)
全部评论
						
							评论网友评论仅友表达个人看法,并不表明本站同意其观点,不得发布违反法律法规的内容!
						
						
 
	              	 
	              	 
	              	 
	              	 
	              	