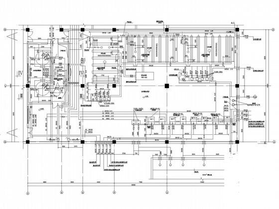
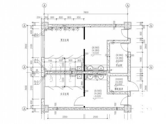
7层会议中心建筑给排水CAD施工图纸(游泳馆水处理)
- 发布时间:2022-10-29
- 评论次数:0
- 浏览次数:0
- 文件大小:7.37 MB
- 收藏次数:0
-
文件名称:
附件-995859575556857798876.rar
相关下载
- 游泳馆给排水图纸
- 游泳馆游泳池给排水CAD施工图纸(循环水处理设备)
- 游泳馆建筑施工CAD图纸
- 游泳馆给排水CAD图纸(设计施工)
- 大学游泳馆给排水CAD施工图纸
- 会议中心污水处理电气配电系统CAD图纸
- 会所游泳馆游泳池CAD图纸(水处理)
- 奥体游泳馆建筑CAD施工图纸
- 4层会议中心给排水消防CAD施工图纸
- 4层会议中心给排水消防CAD施工图纸
- 健身中心游泳馆水处理CAD施工图纸(除湿恒温加热)(石英砂过滤器)
- 游泳馆游泳池循环水处理及加热、空气恒温恒湿施工图纸
- 花园游泳馆循环水处理设计cad图纸,给排水平面图,机房大样图
- 会议中心污水处理电气配电系统CAD图纸及PLC控制CAD图纸
- 4层体育中心游泳馆给排水CAD施工图纸
- 4层体育中心游泳馆给排水CAD施工图纸
- 大学游泳馆给排水设计CAD施工图纸.dwg
- 游泳馆建筑设计方案.dwg
- 中水处理站建筑给排水施工图纸.dwg
- 室内游泳馆给排水CAD施工大样图
全部评论
评论网友评论仅友表达个人看法,并不表明本站同意其观点,不得发布违反法律法规的内容!
