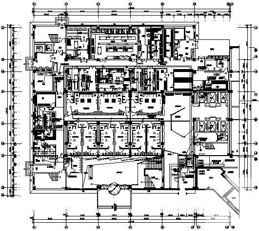
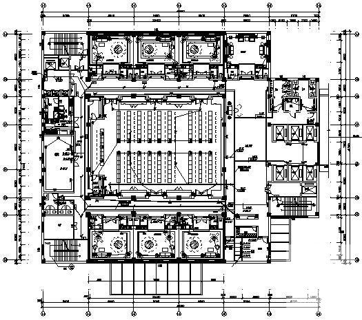
酒店3层会议中心大楼电气设计CAD施工图纸
- 发布时间:2022-10-18
- 评论次数:0
- 浏览次数:0
- 文件大小:3.48 MB
- 收藏次数:0
-
文件名称:
附件-995856655960875057896.rar
相关下载
- 3层酒店会议中心大楼电气CAD施工图纸()
- 电信大楼电气设计图纸
- 3层酒店会议中心电气CAD施工图纸40张
- 3层酒店会议中心强弱电CAD施工图纸40张
- 3层度假酒店会议中心空调通风CAD施工图纸
- 玄武湖国际大酒店3层会议中心建筑施工CAD图纸
- 3层酒店会议中心电气CAD施工大样图40张
- 12层酒店及4层会议中心建筑施工CAD大样图.dwg
- 5700平4层会议中心电气设计CAD图纸.dwg
- 仿古2层酒店会议中心建筑扩初和结构扩初
- 会议室大楼电气设计图纸.
- 供水大楼电气设计CAD图纸.dwg
- 酒店电气设计图纸.dwg
- 学校3层大楼电气设计图纸,含电气设计说明.dwg
- 移动办公大楼电气设计方案
- 框架结构国际酒店会议中心结构CAD施工图纸(3层墩基础)
- 24层酒店及会议中心外立面工程建筑施工CAD图纸(隐框玻璃幕墙)
- 框架结构国际酒店会议中心结构CAD施工图纸(3层墩基础)
- 城市酒店大楼结构设计计算书.doc
- 26层国际酒店电气设计
全部评论
评论网友评论仅友表达个人看法,并不表明本站同意其观点,不得发布违反法律法规的内容!
