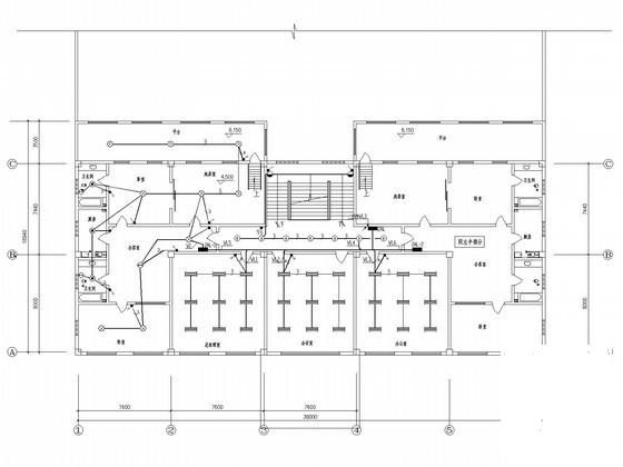
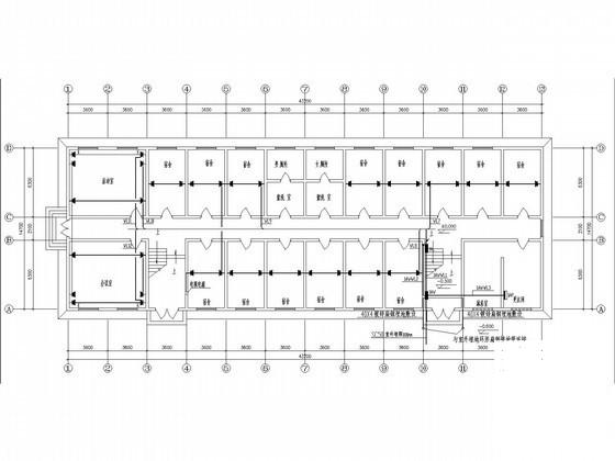
大型两层厂房及宿舍电气设计CAD施工图纸
- 发布时间:2022-10-17
- 评论次数:0
- 浏览次数:0
- 文件大小:0.6 MB
- 收藏次数:0
-
文件名称:
附件-995856588005509579878.zip
相关下载
- 2层厂房及宿舍电气设计CAD图纸
- 两层大型厂房电气设计CAD施工图纸(火灾自动报警系统)
- 大型厂房全套电气设计施工图纸.
- 大型工业厂房电气施工图纸(厂房、职工宿舍、办公楼、仓库)
- 两层员工宿舍电气设计CAD施工图纸(火灾自动报警)
- 服饰公司厂房及宿舍给排水设计CAD图纸
- 两层知名生物公司厂房电气设计CAD施工图纸
- 两层车间厂房电气设计CAD施工图纸
- 11层大型办公楼全套电气施工CAD图纸(办公、餐厅宿舍及车库)
- 6层厂房宿舍电气设计施工图纸,共6张
- 4层大型工艺厂房电气设计CAD施工图纸
- 大型厂房电气设计CAD施工图纸(二次原理图)
- 大型厂房电气设计CAD施工图纸38张
- 11层大型办公楼电气CAD施工图纸(办公、餐厅宿舍及车库)(消防报警及联动)
- 3层学校宿舍楼及食堂电气设计施工图纸
- 林学院车间及住宿舍电气设计CAD施工图纸.dwg
- 大型厂区弱电系统电气设计CAD施工图纸(系统及平面图)
- 宿舍电气设计图纸.dwg
- 大型厂房全套电气施工图纸
- 大型厂房空调CAD施工图纸
全部评论
评论网友评论仅友表达个人看法,并不表明本站同意其观点,不得发布违反法律法规的内容!
