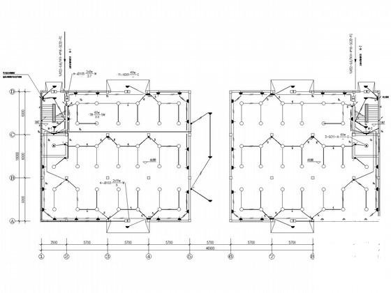
4层大型工艺厂房电气设计CAD施工图纸
- 发布时间:2022-10-17
- 评论次数:0
- 浏览次数:0
- 文件大小:0.33 MB
- 收藏次数:0
-
文件名称:
附件-995856589858908809695.zip
相关下载
- 大型厂房全套电气设计施工图纸.
- 大型两层厂房及宿舍电气设计CAD施工图纸
- 大型厂房电气设计CAD施工图纸(二次原理图)
- 大型厂房电气设计CAD施工图纸38张
- 大型工业项目主装置工艺管线施工方案
- 对大型火力发电厂主厂房结构施工采用“镜面混凝土”工艺的探讨.pdf
- 厂房的工艺配电CAD图纸
- 厂房工艺给水设计图纸.
- 大型厂房全套电气施工图纸
- 大型厂房空调CAD施工图纸
- 4层工艺厂房空调通风施工图纸
- 工艺厂房电气全套CAD施工图纸
- 大型综合商场电气设计施工图纸
- 大型铸造车间电气设计CAD施工图纸
- 大型网吧电气设计CAD施工图纸.dwg
- 水电站工艺电气设计.dwg
- 两层大型厂房电气设计CAD施工图纸(火灾自动报警系统)
- 2层一大型电子厂房电气设计CAD施工图纸
- 生产厂房给排水工艺竣工图纸.dwg
- 厂房工程电气设计
全部评论
评论网友评论仅友表达个人看法,并不表明本站同意其观点,不得发布违反法律法规的内容!
