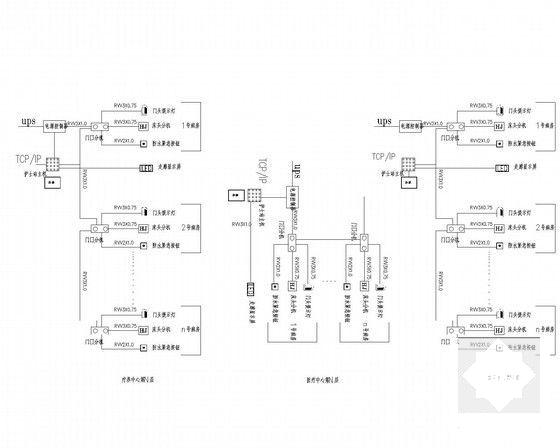
社会福利院养老院电气完整智能化系统工程cad图纸含医疗
- 发布时间:2022-10-17
- 评论次数:0
- 浏览次数:0
- 文件大小:4.72 MB
- 收藏次数:0
- 
								文件名称: 附件-995855975968587785079.zip 附件-995855975968587785079.zip
								相关下载
							
						- 社会福利院养老院电气全套智能化系统工程施工图纸含医疗部分.dwg
- 社会福利院中心大楼消防CAD图纸(自动喷水灭火系统)
- 福利院医疗室结构CAD施工图纸
- 南方14层社会福利院给排水全CAD施工图纸(室内消火栓系统)
- 5层社会福利院电气CAD施工图纸(二级负荷,三级负荷)
- 5层2014年社会福利院电气施工CAD图纸22张(新照明新火规)
- 6028平米社会福利院中心大楼消防全套图纸
- 社会福利院3层病房建筑施工CAD图纸
- 社会福利院5层综合楼建筑施工CAD图纸
- 社会福利院3层病房建筑施工CAD大样图
- 17层社会福利院空调通风及防排烟系统设计施工CAD图纸(风冷热泵系统)
- 多层框架结构福利院医疗室结构施工图纸
- 38993平米17层社会福利院空调通风及防排烟系统设计施工图纸
- 售楼部电气CAD施工图纸[含弱电智能化]
- 小区智能化系统电气施工设计图纸
- 两层养老院电气图纸(三级负荷)(综合布线系统)
- 2层养老院电气CAD施工图纸
- 医院智能化系统图纸
- 智能化系统设计CAD图纸
- 小区智能化系统CAD图纸
全部评论
						
							评论网友评论仅友表达个人看法,并不表明本站同意其观点,不得发布违反法律法规的内容!
						
						
 
	              	 
	              	 
	              	 
	              	 
	              	