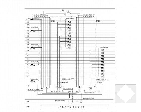
地上25层安置房电气CAD施工图纸(第二类防雷)(消防报警及联动)
- 发布时间:2022-10-12
- 评论次数:0
- 浏览次数:0
- 文件大小:2.87 MB
- 收藏次数:0
- 
								文件名称: 附件-995856868957977556795.rar 附件-995856868957977556795.rar
								相关下载
							
						- 34层大型商住楼电气CAD施工图纸(一级负荷,第二类防雷)(消防报警及联动)
- 消防报警及联动系统CAD图纸
- 消防报警及联动系统CAD图纸
- 高层消防报警及联动CAD图纸
- 酒店火灾自动报警及消防联动平面图纸
- 消防自动报警及联动平面CAD图纸
- 火灾报警及消防联动系统CAD图纸
- 国内中心消防报警及联动系统图纸.
- 20层住宅楼电气CAD施工图纸(消防报警及联动)
- 25层住宅楼小区电气CAD施工图纸(消防报警及联动)
- 24万平知名大型广场电气CAD施工图纸(消防报警及联动)
- 34层住宅楼电气CAD施工图纸(消防报警及联动)
- 30层住宅楼电气设计CAD施工图纸(消防报警及联动)
- 医院5层医技楼电气设计CAD施工图纸(消防报警及联动)
- 22层住宅楼电气CAD施工图纸(消防报警及联动)
- 33层住宅楼电气CAD施工图纸(消防报警及联动)
- 17层小区住宅楼电气CAD施工图纸(消防报警及联动)
- 6层医院电气设计CAD施工图纸(总)(消防报警及联动)
- 20层大厦电气设计CAD施工图纸(消防报警及联动)
- 27层住宅楼电气设计CAD施工图纸(消防报警及联动)
全部评论
						
							评论网友评论仅友表达个人看法,并不表明本站同意其观点,不得发布违反法律法规的内容!
						
						
 
	              	 
	              	 
	              	 
	              	