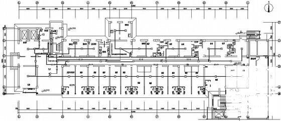
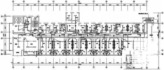
8层医院旧病房楼电气改造CAD施工图纸
- 发布时间:2022-10-11
- 评论次数:0
- 浏览次数:0
- 文件大小:1.07 MB
- 收藏次数:0
-
文件名称:
附件-995856670969000878880.rar
相关下载
- 旧楼改造施工方案(平改坡)
- 旧楼改造幕墙竣工图纸
- 旧楼改造幕墙竣工CAD图纸
- 市级人民7层医院病房楼电气改造CAD图纸(火灾自动报警系统)
- 医院病房电气CAD施工图纸
- 医院病房电气CAD施工图纸
- 医院病房电气施工CAD图纸
- 6层医院病房楼电气施工图纸
- 医院综合病房楼电气施工图纸
- 6层医院病房楼电气CAD施工图纸()
- 医院病房楼电气CAD施工图纸
- 医院综合病房楼电气图纸(一级负荷)
- 多层医院病房楼电气图(20页图纸).dwg
- 5层中学旧楼改造工程电气CAD施工图纸(照明系统图)
- 5层中学旧楼改造工程电气CAD施工图纸
- 17层星级宾馆旧楼改造项目电气套CAD施工图纸
- 3层医院病房楼改造给排水CAD图纸(施工方案图设计)
- 7层医院旧病房楼电气改造CAD施工图纸(钢筋混凝土结构)(TN-S)
- 传染病医院病房楼电气设计
- 国内医院旧病房楼改造施工方案(技术措施)
全部评论
评论网友评论仅友表达个人看法,并不表明本站同意其观点,不得发布违反法律法规的内容!
