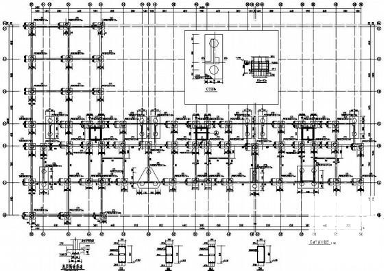
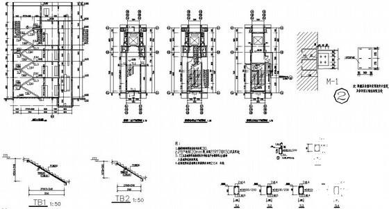
11层框架剪力墙住宅楼结构CAD施工图纸(桩基础,6度抗震)
- 发布时间:2022-10-10
- 评论次数:0
- 浏览次数:0
- 文件大小:0.75 MB
- 收藏次数:0
- 
								文件名称: 附件-995876999857885756559.zip 附件-995876999857885756559.zip
								相关下载
							
						- 上18层框架-抗震墙住宅楼结构CAD施工图纸(桩基础,6度抗震)(预应力管桩)
- 11层桩基础框架剪力墙住宅楼结构CAD施工图纸(7度抗震)
- 27层剪力墙住宅楼结构CAD施工图纸(桩筏基础)
- 桩基础框架结构住宅结构CAD施工图纸(6度抗震)(预应力混凝土管桩)
- 26层剪力墙CFG桩住宅楼结构CAD施工图纸(6度抗震)
- 6层底部框架抗震墙住宅楼结构CAD施工图纸(独立基础)
- 多层条形基础框架住宅楼结构CAD施工图纸(7度抗震)
- 11层独立基础框架结构住宅楼结构CAD施工图纸(6度抗震)(人工挖孔灌注桩)
- 30层剪力墙结构桩筏基础住宅楼结构CAD施工图纸
- 33层剪力墙结构住宅楼结构CAD施工图纸(平板式桩筏基础)
- 38层桩筏基础剪力墙结构高层住宅楼结构CAD施工图纸
- 32层剪力墙结构住宅楼结构CAD施工图纸(CFG桩筏板基础)
- 6层剪力墙结构住宅楼结构CAD施工图纸_桩承台基础
- 剪力墙结构高层住宅楼结构CAD施工图纸(38层桩筏基础)
- 22层桩基础剪力墙结构住宅楼结构CAD施工图纸(7度抗震)
- 11层桩基础剪力墙结构住宅楼结构CAD施工图纸(6度抗震)
- 10层桩基础剪力墙结构住宅楼结构CAD施工图纸(7度抗震)
- 16层桩基础剪力墙结构住宅楼结构CAD施工图纸(7度抗震)
- 82.95米高框架剪力墙结构商住两用结构施工图纸(桩筏基础)
- 8层现浇剪力墙住宅楼结构CAD施工图纸(平筏基础8度抗震)
全部评论
						
							评论网友评论仅友表达个人看法,并不表明本站同意其观点,不得发布违反法律法规的内容!
						
						
 
	              	 
	              	 
	              	