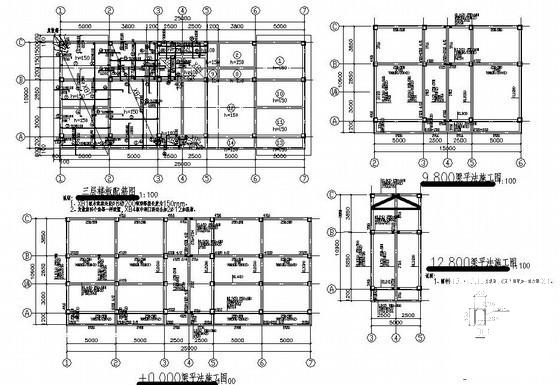
4层独立基础框架别墅结构设计CAD施工图纸
- 发布时间:2022-10-10
- 评论次数:0
- 浏览次数:0
- 文件大小:0.47 MB
- 收藏次数:0
-
文件名称:
附件-995876987905596858895.rar
相关下载
- 两层框架结构别墅结构设计施工图纸(独立基础)
- 独立基础框架私人别墅结构设计施工图纸
- 框架别墅结构设计施工图纸(独立基础)
- 独立基础异型柱框架结构别墅结构设计CAD施工图纸
- 独立基础框架结构别墅结构设计CAD施工图纸
- 3层独立基础框架别墅结构设计CAD施工图纸
- 两层框架别墅结构设计CAD施工图纸(独立基础).dwg
- 别墅独立基础CAD施工图纸
- 2层框架结构独立基础别墅结构设计图纸
- 3层框架结构别墅结构施工图纸(建筑施工CAD图纸独立基础)
- 3层框架结构独立别墅结构设计CAD施工图纸(基础平面图)
- 独立基础异形柱框架别墅结构设计CAD施工图纸(平面布置图)
- 3层框架别墅建筑结构设计图纸(独立基础)(梁平法施工图)
- 独立基础2层别墅CAD施工图纸,
- 框架别墅结构施工图纸(独立基础,共20张)
- 坡屋顶带架空层框架别墅结构CAD施工图纸(独立基础)
- 4层框架钢筋混凝土别墅结构CAD施工图纸(独立基础)
- 2层异形柱框架结构双拼别墅结构CAD施工图纸(独立基础)
- 现浇混凝土框架私人别墅结构CAD施工图纸(独立基础)
- 异型柱框架结构别墅结构CAD施工图纸(2层、独立基础)
全部评论
评论网友评论仅友表达个人看法,并不表明本站同意其观点,不得发布违反法律法规的内容!
