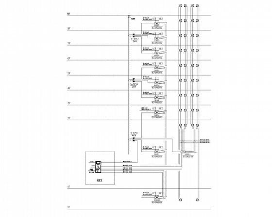
8层机关后勤保障中心电气CAD施工图纸71张(照明、防雷计算书)(消防联动控制系统)
- 发布时间:2022-10-10
- 评论次数:0
- 浏览次数:0
- 文件大小:5.84 MB
- 收藏次数:0
- 
								文件名称: 附件-995856559506750895788.rar 附件-995856559506750895788.rar
								相关下载
							
						- 8层机关后勤保障中心电气施工CAD图纸71张(照明、防雷计算书)(消防联动控制系统)(TN-S)
- 8层商贸中心迎宾楼电气设计CAD图纸(消防联动控制系统)
- 8层市级档案馆电气CAD施工图纸(防雷、照明计算书)
- 8层市级档案馆电气施工CAD图纸67张(防雷、照明计算书)
- 学院弱电施工方案(消防联动控制系统)
- 3层中心医院病房楼电气设计CAD施工图纸(消防联动控制系统)
- 水泵房消防联动控制系统CAD图纸
- 8层商贸中心迎宾楼电气设计图纸(二级负荷)(消防联动控制系统)
- 32层综合楼电气消防CAD施工图纸(联动控制系统)
- 经典15层商住楼电气CAD施工图纸(消防联动控制系统)
- 博物馆电气设计CAD施工图纸(消防联动控制系统)
- 小区15层住宅楼电气CAD施工图纸(消防联动控制系统)
- 新建办公综合楼电气CAD施工图纸(消防联动控制系统)
- 小区20层住宅楼电气CAD施工图纸(消防联动控制系统)
- 住宅小区人防工程电气CAD施工图纸(消防联动控制系统)
- 22层酒店电气CAD施工图纸(消防联动控制系统)
- 15层电梯公寓电气设计CAD施工图纸(消防联动控制系统)
- 9层中学教学楼消防电气CAD施工图纸(联动控制系统)
- 海边车库水电房消防电气设计CAD施工图纸(联动控制系统)
- 18层商务酒店电气CAD施工方案图纸(消防联动控制系统)
全部评论
						
							评论网友评论仅友表达个人看法,并不表明本站同意其观点,不得发布违反法律法规的内容!
						
						
 
	              	 
	              	 
	              	 
	              	 
	              	