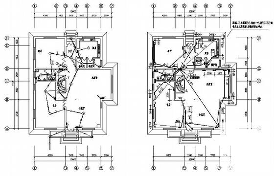
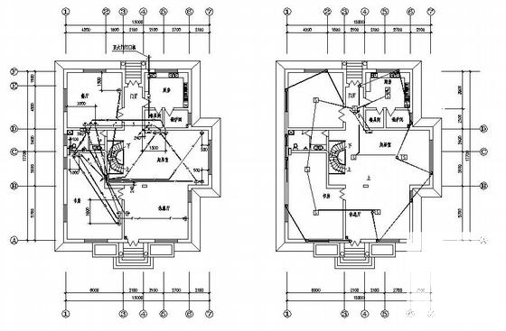
上3层别墅小区电气CAD施工图纸(三级负荷,第三类防雷)(火灾报警)
- 发布时间:2022-10-06
- 评论次数:0
- 浏览次数:0
- 文件大小:0.84 MB
- 收藏次数:0
- 
								文件名称: 附件-995856787069997559768.rar 附件-995856787069997559768.rar
								相关下载
							
						- 上6层宾馆电气CAD施工图纸(三级负荷,第三类防雷).dwg
- 13层钢筋混凝土结构住宅楼电气CAD施工图纸(三级负荷,第三类防雷)(火灾自动报警)
- 联排别墅电气施工图纸(三级负荷,第三类防雷)
- 上3层住宅楼别墅电气设计图纸(三级负荷,第三类防雷)(混凝土楼板)
- 上6层住宅楼小区电气CAD施工图纸(三级负荷)(防雷接地系统)
- 上6层钢筋混凝土结构商业楼电气CAD施工图纸(三级负荷,第三类防雷)(火灾自动报警)
- 6层商住楼电气施工图纸(三级负荷,第三类防雷)
- 生产机修车间电气CAD施工图纸(三级负荷,第三类防雷)
- 两层宾馆电气CAD施工图纸(三级负荷,第三类防雷)
- 6层星级酒店电气CAD施工图纸(三级负荷,第三类防雷)
- 地上3层旅馆电气CAD施工图纸(三级负荷,第三类防雷)
- 丙类粮库电气CAD施工图纸(三级负荷,第三类防雷)
- 综合厂房电气CAD施工图纸(二级,三级负荷,第三类防雷)
- 上6层民用住宅楼电气CAD施工图纸(三级负荷,第三类防雷)
- 上6层住宅楼电气CAD施工图纸(三级负荷,第三类防雷)
- 上6层住宅楼电气CAD施工图纸(三级负荷,第三类防雷)
- 上9层学生宿舍楼电气CAD施工图纸(三级负荷,第三类防雷)(综合布线系统)
- 3层花木场电气图纸(三级负荷,第三类防雷)
- 低层住宅楼电气设计(三级负荷,第三类防雷).dwg
- 上两层双拼别墅电气CAD施工图纸(三级负荷)
全部评论
						
							评论网友评论仅友表达个人看法,并不表明本站同意其观点,不得发布违反法律法规的内容!
						
						
 
	              	 
	              	 
	              	