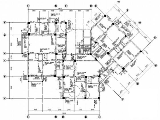
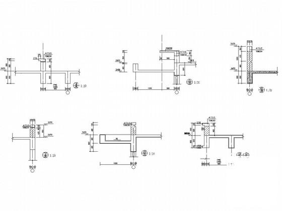
11层框剪结构住宅楼结构CAD施工图纸(桩基础)(框架柱配筋)
- 发布时间:2022-09-26
- 评论次数:0
- 浏览次数:0
- 文件大小:6.1 MB
- 收藏次数:0
- 
								文件名称: 附件-995876786889996968697.rar 附件-995876786889996968697.rar
								相关下载
							
						- 8层异形柱框剪结构住宅楼结构CAD施工图纸(梁板配筋图)
- 摩擦桩基础配筋设计CAD图纸(桩接承台桩接墩柱)
- 柱下独立基础框架结构住宅楼结构CAD施工图纸(梁平法配筋图)
- 12层框剪结构宿舍楼结构CAD施工图纸(条形基础)(梁平法配筋图)
- 30层框剪结构住宅楼结构CAD施工图纸(梁平法配筋图)
- 30层框剪结构高层住宅楼结构CAD施工图纸(梁平法配筋图)
- 11层桩基础异形柱框剪住宅楼结构CAD施工图纸
- 11层异形柱框剪住宅楼结构CAD施工图纸(桩基础)
- 框剪会所结构CAD施工图纸(6层筏型基础)(梁配筋图)
- 31层框剪结构住宅楼结构设计图纸(楼梯梯板配筋)
- 高层框剪结构住宅楼结构设计图纸(梁平法配筋图)
- 城中村改造框剪住宅结构CAD施工图纸(梁配筋图)
- 框架梁、柱配筋表(体积配箍率)
- 11层框剪带闷顶住宅楼结构CAD施工图纸(梁平法配筋图)
- 11层桩基础框剪结构住宅楼结构设计CAD施工图纸(梁平法配筋图)
- 18层筏形基础框剪结构住宅楼结构CAD施工图纸(6度抗震)(边缘构件配筋)
- 6层桩基础底框结构住宅楼结构CAD施工图纸(梁平法配筋图)
- 11层框剪结构住宅楼结构CAD施工图纸(桩基础)(预应力混凝土管桩)
- 18层框剪高层住宅楼结构设计CAD图纸(边缘构件配筋)
- 11层桩基础框剪住宅楼结构设计CAD施工图纸(剪力墙配筋)
全部评论
						
							评论网友评论仅友表达个人看法,并不表明本站同意其观点,不得发布违反法律法规的内容!
						
						
 
	              	 
	              	 
	              	