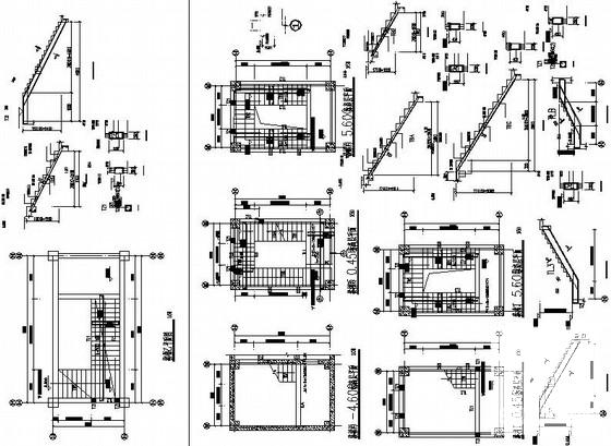
3层框架结构中学礼堂结构CAD施工图纸(6度抗震)
- 发布时间:2022-09-26
- 评论次数:0
- 浏览次数:0
- 文件大小:2.71 MB
- 收藏次数:0
- 
								文件名称: 附件-995876788579780598575.rar 附件-995876788579780598575.rar
								相关下载
							
						- 3层框架结构中学礼堂结构CAD施工大样图
- ]独立基础钢框架婚礼堂结构CAD施工图纸(8度抗震)
- 6层框架结构学校礼堂结构设计施工图纸
- 地上两层框架结构礼堂结构CAD施工图纸
- 2层大学框架结构礼堂建筑施工CAD图纸(平面布置图)
- 礼堂电气CAD图纸
- 木结构礼堂结构CAD施工方案图纸
- 木结构礼堂结构CAD施工图纸.dwg
- 中学2层桁架结构礼堂建筑方案设计图纸(高12米)(平面图)
- 中学教学楼的抗震鉴定与加固施工
- 钢框架婚礼堂结构CAD施工图纸
- 地上两层框架结构学校礼堂结构设计施工图纸
- 礼堂装修电气CAD施工图纸
- 礼堂电气设计施工图纸
- 大学礼堂建筑施工CAD图纸
- 木结构礼堂结构设计cad图纸
- 中学大门网架结构建筑CAD施工图纸(7度抗震)
- 38.75米跨中学大门网架结构CAD施工图纸(8度抗震)
- 6层中学内底框抗震墙廉租房结构CAD施工图纸.dwg
- 2层大学框架结构礼堂建筑施工图纸cad平面布置图
全部评论
						
							评论网友评论仅友表达个人看法,并不表明本站同意其观点,不得发布违反法律法规的内容!
						
						
 
	              	 
	              	 
	              	