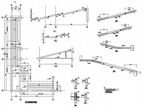
结算中心(办公楼、酒店)结构CAD施工图纸(现浇钢筋混凝土)
- 发布时间:2022-09-26
- 评论次数:0
- 浏览次数:0
- 文件大小:5.88 MB
- 收藏次数:0
-
文件名称:
附件-995876978760597970768.rar
相关下载
- 华北结算中心16层酒店建筑施工cad图纸_现代风格酒店施工图
- 华北结算中心16层酒店建筑施工CAD图纸(卫生间详图)
- 华北结算中心11层现代风格办公楼建筑施工CAD图纸
- 6层框架办公楼建筑结构CAD图纸(现浇钢筋混凝土)
- 理财中心电气CAD施工图纸(现浇钢筋混凝土)
- 会所装修工程结算书(水电工程结算)
- 8层框架结构水环境监测中心办公楼结构图纸(建筑图纸)(现浇钢筋混凝土)
- 厂区办公楼建筑CAD施工图纸(现浇钢筋混凝土)
- 两层办公楼电气CAD施工图纸(现浇钢筋混凝土)
- 商场改造为五星酒店结构CAD施工图纸(现浇钢筋混凝土)
- 1层现浇钢筋混凝土框架结构办公楼结构CAD施工图纸
- 6层框架结构办公楼结构CAD施工图纸(现浇钢筋混凝土)
- 6层框架结构办公楼结构CAD施工方案图纸(现浇钢筋混凝土)
- 4层山庄中心会所建筑扩初图纸(现浇钢筋混凝土)
- 钢筋混凝土现浇框架结构活动中心科技楼(建筑、结构CAD图纸)
- 研发中心及工业厂房施工组织设计(框架结构)(现浇钢筋混凝土)
- 中学综合办公楼设计建筑结构CAD施工图纸(现浇钢筋混凝土)
- 12层框架结构办公楼CAD施工图纸(现浇钢筋混凝土)
- 办公楼毕业设计方案(部分建筑、结构施工图纸)(现浇钢筋混凝土)
- 培训中心毕业设计方案(建筑、结构CAD图纸)(现浇钢筋混凝土)
全部评论
评论网友评论仅友表达个人看法,并不表明本站同意其观点,不得发布违反法律法规的内容!
