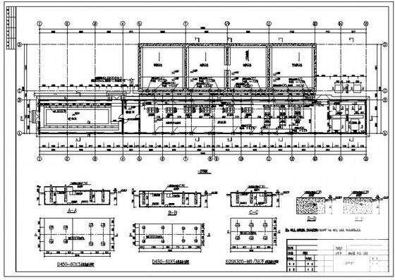
钢铁公司水泵房及其水池结构设计施工图纸
- 发布时间:2021-11-28
- 评论次数:0
- 浏览次数:0
- 文件大小:0.9 MB
- 收藏次数:0
-
文件名称:
附件-995878700577995658509.rar
水泵房结构施工图下载
- 钢铁公司水泵房及其水池结构设计CAD施工图纸
- 钢铁公司转运站结构设计CAD施工图纸
- 住宅楼消防水池和水泵房大样施工图纸
- 单层框架结构消防水池水泵房结构施工图纸
- 室外消防水池及水泵房电气施工图纸
- 消防水池和水泵房CAD大样图纸(施工方案图设计)
- 消防水池_水泵房给排水大样施工图纸CAD
- 森林公园水泵房及水池施工CAD详图纸
- 水泵房及水池结构设计说明及通用节点CAD详图纸.dwg
- 水泵房及水池结构设计说明及通用节点详图纸cad
- 水泵房消防水池混凝土结构施工方案大样图
- 工程循环水泵房水池及反洗池施工方案
- 钢铁公司烧结厂区设备安装施工方案
- 钢铁公司热风炉框架及平台结构设计图纸
- 24层住宅楼给排水CAD图纸(水泵房消防水池)
- 复合式衬砌隧道水泵房蓄水池结构节点CAD详图纸设计
- 钢铁公司焦化工程总平面CAD图纸
- 城市设计及其发展
- 水泵房结构设计CAD图纸
- 水泵房结构设计CAD图纸.dwg
全部评论
评论网友评论仅友表达个人看法,并不表明本站同意其观点,不得发布违反法律法规的内容!
