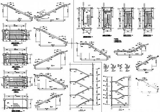
框架结构综合性办公楼结构CAD施工图纸
- 发布时间:2022-09-25
- 评论次数:0
- 浏览次数:0
- 文件大小:3.18 MB
- 收藏次数:0
-
文件名称:
附件-995877850865797757509.rar
相关下载
- 7层综合性办公楼框架结构CAD施工图纸()
- 10层现代综合性办公楼建筑结构CAD施工图纸
- 153.68米框架结构综合性办公楼结构CAD施工图纸(地下室平面图)
- 综合性高层酒店暖通施工图纸
- 综合性商业建筑建筑CAD施工图纸
- 7层综合性写字楼建筑CAD图纸(钢筋混凝土结构)
- 《混凝土结构设计原理》综合性设计性实验指导书
- 办公楼3层框架结构CAD图纸
- 典型小办公楼框架结构CAD图纸
- 6层框架结构办公楼结构施工图纸(建筑施工图纸)
- 综合性小区规划图纸及B组团建筑施工CAD图纸
- 公司钢结构框架结构办公楼结构设计施工图纸
- 综合性商场空调通风排烟系统设计施工图纸
- 生态文化综合性公园扩初全套施工图纸
- 综合性商业建筑CAD施工图纸(办公室)
- 综合性重点大学食堂电气设计CAD施工图纸
- 5层综合性医院住院楼给排水CAD施工图纸
- 一类高层综合性商住楼电气CAD施工图纸
- 艺术餐饮多层综合性建筑给排水CAD施工图纸
- 9层综合性商业楼强、弱电CAD施工图纸
全部评论
评论网友评论仅友表达个人看法,并不表明本站同意其观点,不得发布违反法律法规的内容!
