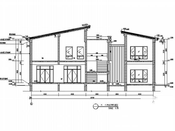
温泉度假酒店独立客房外立面CAD施工图纸
- 发布时间:2022-09-25
- 评论次数:0
- 浏览次数:0
- 文件大小:2.06 MB
- 收藏次数:0
-
文件名称:
附件-995859997096095785557.rar
相关下载
- 温泉度假酒店建筑
- 高层温泉度假酒店电气施工图纸(2019)
- 温泉酒店度假中心规划建筑CAD图纸
- 8层温泉度假酒店方案设计文本
- 度假酒店客房电气CAD施工图纸(TN-C-S)
- 6层框架结构温泉度假酒店全套施工图纸
- 18层温泉度假酒店给排水施工图纸2020
- 18层温泉度假酒店暖通施工图纸2020
- 7层温泉度假酒店强电系统CAD施工图纸
- 4层温泉度假酒店结构设计CAD施工图纸
- 温泉度假酒店电气装饰平面施工图纸.dwg
- 国际大酒店3层别墅式客房建筑施工图纸_度假酒店cad施工图
- 温泉度假村规划方案_CAD
- 4层温泉度假酒店结构设计方案CAD图纸
- 温泉度假酒店基坑边坡支护大样图
- 大型温泉养生旅游度假区设计方案文本(星级酒店设计)
- 东南亚风格温泉度假酒店设计方案文本
- 温泉度假小镇游泳水疗温泉中心CAD施工图纸(儿童戏水池)
- 温泉度假区室外景观电气施工CAD图纸
- 温泉度假别墅设计建筑CAD图纸
全部评论
评论网友评论仅友表达个人看法,并不表明本站同意其观点,不得发布违反法律法规的内容!
