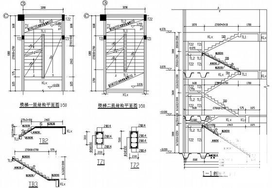
3层独立基础框架结构办公楼结构CAD施工图纸(带地下室)(平面布置图)
- 发布时间:2022-09-25
- 评论次数:0
- 浏览次数:0
- 文件大小:0.53 MB
- 收藏次数:0
-
文件名称:
附件-995876869887978506667.rar
相关下载
- 框架结构办公楼结构CAD施工图纸(3层独立基础)(平面布置图)
- 4层独立基础框架结构办公楼CAD施工图纸(带雨篷)(平面布置图)
- 3层带地下室业务培训楼框架结构CAD施工图纸(独立基础)
- 27层框剪结构地下室结构CAD施工图纸(独立基础)(平面布置图)
- 带式输送机栈桥钢桁架结构CAD施工图纸(独立基础)(平面布置图)
- 框架结构别墅酒店结构CAD施工图纸(2层独立基础带夹层)
- 框架结构别墅酒店结构CAD施工图纸(2层独立基础带夹层)
- 两层砌体结构办公楼结构CAD施工图纸(独立基础)(平面布置图)
- 框架结构厂房结构CAD施工图纸(柱下独立基础)(平面布置图)
- 框架结构养老院结构CAD施工图纸(3层独立基础)(平面布置图)
- 框架结构宾馆结构CAD施工图纸(3层独立基础)(平面布置图)
- 框架结构宾馆结构CAD施工图纸(4层独立基础)(平面布置图)
- 两层框架结构别墅结构CAD施工图纸(独立基础)(平面布置图)
- 5层框架结构住宅楼结构CAD施工图纸(独立基础)(平面布置图)
- 3层独立基础框架结构别墅结构CAD施工图纸(平面布置图)
- 3层独立基础框架结构别墅结构CAD施工图纸(平面布置图)
- 3层独立基础框架结构别墅结构CAD施工图纸(建施)(平面布置图)
- 6层(带地下室)底框结构住宅楼结构CAD施工图纸(独立基础)
- 8层独立基础框架办公楼结构CAD施工图纸(平面布置图)
- 两层独立基础钢框架办公楼结构CAD施工图纸(平面布置图)
全部评论
评论网友评论仅友表达个人看法,并不表明本站同意其观点,不得发布违反法律法规的内容!
