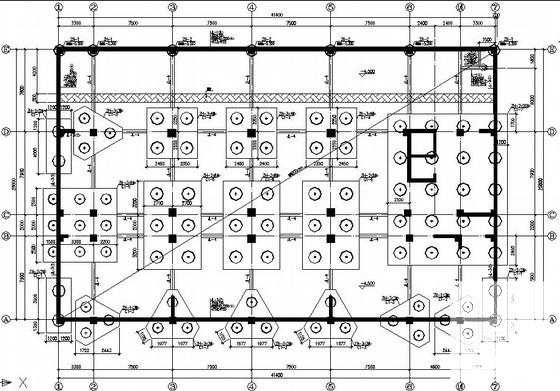
地下1层地上13层框剪商贸大厦结构CAD施工图纸(边缘构件配筋)
- 发布时间:2022-09-23
- 评论次数:0
- 浏览次数:0
- 文件大小:2.09 MB
- 收藏次数:0
-
文件名称:
附件-995876805979078877088.zip
相关下载
- 1层地下室地上10层框剪住宅楼结构CAD施工图纸(边缘构件配筋)
- 11层框剪结构酒店结构设计施工图纸(边缘构件配筋)
- 18层框剪高层住宅楼结构设计CAD图纸(边缘构件配筋)
- 带地下室5层底框职工单身宿舍结构CAD施工图纸(边缘构件配筋)
- 18层筏形基础框剪结构住宅楼结构CAD施工图纸(6度抗震)(边缘构件配筋)
- 地下1层地上30层剪力墙住宅楼结构CAD施工图纸(边缘构件配筋)
- 构造边缘构件纵向钢筋的配筋率和箍筋的体积配箍率选用表
- 约束边缘构件纵向钢筋的配筋率和箍筋的体积配箍率选用表
- 剪力墙边缘构件配筋选用表节点构造详图纸
- 剪力墙约束边缘构件截面配筋表节点构造详图纸
- 剪力墙边缘构件、柱配筋CAD详图纸
- 抗震剪力墙的构造边缘构件配筋选用表
- 剪力墙构造边缘构件配筋选用表节点设计图
- 抗震剪力墙的构造边缘构件配筋选用表
- 构造边缘构件纵向钢筋的配筋率选用表
- 7度区剪力墙住宅结构CAD施工图纸(筏形基础)(边缘构件配筋)
- 检验中心基地建设项目孵化楼结构设计CAD施工图纸(边缘构件配筋)
- 20层框剪结构商贸大厦结构CAD施工图纸(建筑图纸).dwg
- 33层落地剪力墙结构住宅楼结构设计CAD图纸(边缘构件配筋)
- 16层剪力墙林场住宅楼结构图纸(建筑图纸)(边缘构件配筋)
全部评论
评论网友评论仅友表达个人看法,并不表明本站同意其观点,不得发布违反法律法规的内容!
