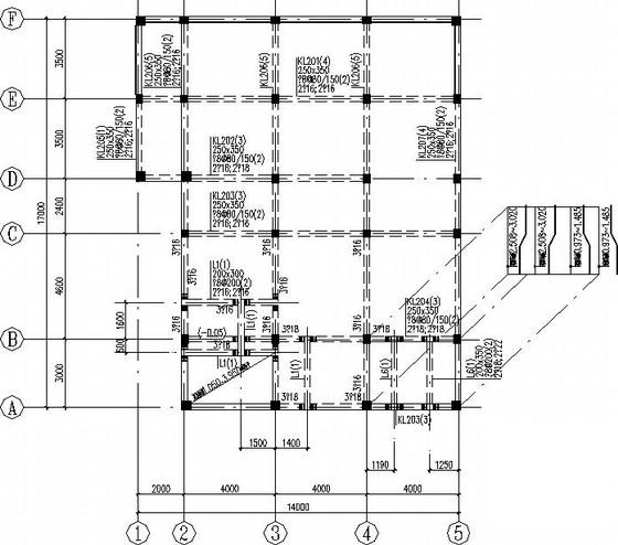
3层半地下室框架别墅建筑结构CAD施工图纸
- 发布时间:2022-09-23
- 评论次数:0
- 浏览次数:0
- 文件大小:0.63 MB
- 收藏次数:0
- 
								文件名称: 附件-995876780959886607695.zip 附件-995876780959886607695.zip
								相关下载
							
						- 3层半地下室框架别墅建筑结构CAD施工图纸
- 带半地下室别墅建筑结构大样图
- 半框架半砖混结构独栋别墅建筑施工CAD图纸设计
- 半框架半砖混结构3层独栋别墅建筑设计方案
- 3层坡地联排别墅户型图纸(半地下室).dwg
- 6层带半地下室框架住宅楼结构施工图纸
- 半地下室1层框架消防泵房结构CAD施工图纸
- 住宅半地下室结构CAD图纸
- 5层砖混底框宾馆建筑结构CAD图纸(半地下室平面图)
- 3层半框架结构农村自建别墅结构CAD施工图纸(、12张)
- 框架别墅建筑结构CAD图纸
- 两套3层坡地联排别墅户型CAD图纸(半地下室)(平面图)
- 3层框架结构叠拼别墅(带大地下室)建筑结构CAD施工图纸
- 带地下室3层框架结构别墅建筑结构CAD施工图纸
- 半地下室1层框架消防泵房结构CAD施工图纸(7度抗震)
- 框架别墅建筑结构套CAD施工图纸
- 3层框架别墅建筑结构施工图纸.
- 12层框架剪力墙结构安置房结构图纸(半地下室)
- 6层住宅楼电气CAD施工图纸(半地下室)
- 6层半地下室砖混住宅结构CAD施工图纸
全部评论
						
							评论网友评论仅友表达个人看法,并不表明本站同意其观点,不得发布违反法律法规的内容!
						
						
 
	              	 
	              	 
	              	