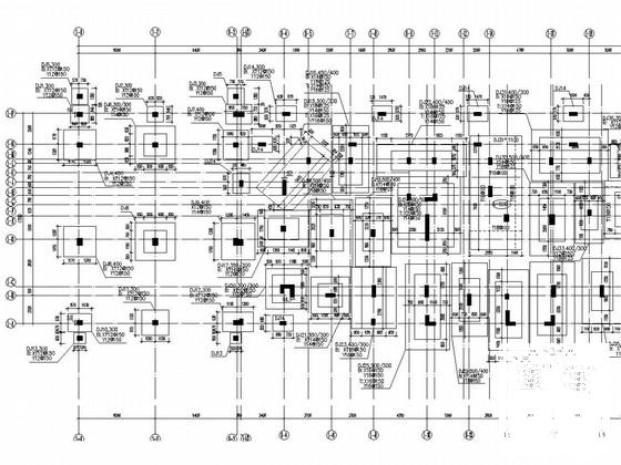
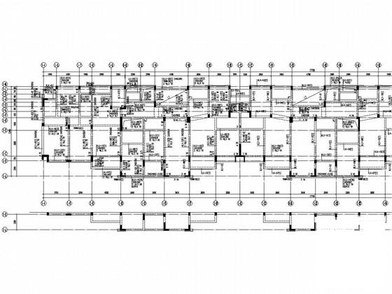
9层框架结构国际中心雅居结构CAD施工图纸
- 发布时间:2022-09-22
- 评论次数:0
- 浏览次数:0
- 文件大小:3.29 MB
- 收藏次数:0
- 
								文件名称: 附件-995876755859898689765.rar 附件-995876755859898689765.rar
								相关下载
							
						- 9层框架结构国际中心雅居结构CAD施工图纸
- 雅居乐多层钢结构住宅计算书(91页)
- 雅居乐天域售楼部概念景观设计方案.pdf
- 星光岛青雅居酒店建筑方案文本_含标文地勘.dwg
- “休克性”楼盘再开发初探——以都江堰市古堰雅居为例(住宅)
- 4层名居社区中心工程方案扩初
- 国际会展中心新馆钢结构施工.pdf
- 国际会展中心钢结构施工.pdf
- 3层钢框架结构国际游艇会展中心结构CAD施工图纸(建筑图纸)
- 框架结构国际酒店会议中心结构CAD施工图纸(3层墩基础)
- 框架结构国际酒店会议中心结构CAD施工图纸(3层墩基础)
- 3层钢框架结构国际游艇会展中心结构图纸(建筑图纸)
- 国际会展中心项目展馆钢框架结构CAD施工图纸(平面布置图)
- 现代国际展览中心结构设计
- 新国际博览中心钢结构设计
- 沿海国际中心结构设计.pdf
- 国际商业中心大厦结构设计
- 天元港国际中心结构设计.pdf
- 国际会展中心钢结构设计
- 国际会展中心钢结构设计
全部评论
						
							评论网友评论仅友表达个人看法,并不表明本站同意其观点,不得发布违反法律法规的内容!
						
						
 
	              	 
	              	 
	              	