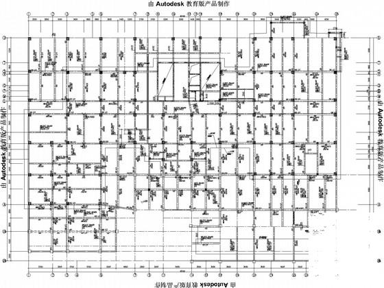
14层框剪综合楼结构CAD施工图纸(独立柱墩基础)(平面布置图)
- 发布时间:2022-09-22
- 评论次数:0
- 浏览次数:0
- 文件大小:4.18 MB
- 收藏次数:0
-
文件名称:
附件-995876757779795855076.zip
相关下载
- 框剪结构高层住宅结构CAD施工图纸(18层墩基础)
- 18层墩基础框剪结构高层住宅楼结构CAD施工图纸(独立基础)
- 21层框剪综合楼结构CAD施工图纸(桩基、独基)(梁平法配筋图)
- 11层桩基础框剪结构住宅楼结构CAD施工图纸(平面布置图)
- 框剪结构住宅楼结构CAD施工图纸(11层桩基础)(平面布置图)
- 18层框剪结构商住楼结构CAD施工图纸(条形基础)(平面布置图)
- 26层独立基础框剪结构住宅楼结构CAD施工图纸(平面布置图)
- 12层框剪结构别墅结构CAD施工图纸(桩基础)(平面布置图)
- 16层框剪结构酒店结构CAD施工图纸(桩基础)(平面布置图)
- 27层框剪结构地下室结构CAD施工图纸(独立基础)(平面布置图)
- 18层框剪结构住宅楼结构CAD施工图纸(桩基础)(平面布置图)
- 16层框剪商住楼结构施工图纸(筏基,独基)
- 11层框剪结构综合楼结构CAD施工图纸(筏形基础)
- 12层框剪结构商务综合楼结构CAD施工图纸(桩基础)
- 14层桩基础框剪住宅楼结构CAD施工图纸(平面布置图)
- 13层框剪住宅楼结构CAD施工图纸(独立基础)(平面布置图)
- 32层桩基础框剪住宅楼结构CAD施工图纸(平面布置图)
- 22层桩基础框剪结构五星酒店CAD施工图纸(平面布置图)
- 桩基础15层框剪综合楼结构设计CAD施工图纸(平面布置图)
- 16层框剪医院业务综合楼结构CAD施工图纸(独立基础)
全部评论
评论网友评论仅友表达个人看法,并不表明本站同意其观点,不得发布违反法律法规的内容!
