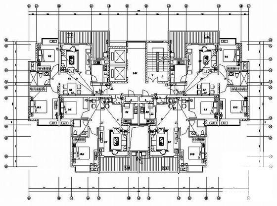
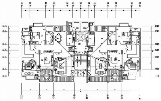
25000平米14层商住楼弱电图纸
- 发布时间:2021-11-27
- 评论次数:0
- 浏览次数:0
- 文件大小:2.44 MB
- 收藏次数:0
-
文件名称:
附件-995856959585898769966.rar
商住楼图纸下载
- 商住楼强弱电全套
- 小区18层商住楼弱电施工图纸
- 20层商住楼弱电CAD图纸
- 福海新城商住楼弱电CAD施工图纸
- 6层商住楼强弱电CAD图纸
- 商住楼弱电平面CAD图纸
- 商住楼强弱电设计CAD图纸.dwg
- 高层商住楼强弱电设计
- 5层商住楼强弱电施工图纸
- 17层商住楼强弱电施工图纸(最新设计规范)
- 高层商住楼强弱电施工图纸40张
- 9973平米18层商住楼强弱电施工图纸
- 十五万平5层商住楼强弱电系统施工图纸
- 16层商住楼强弱电电施施工图纸
- 19层地下两层商住楼弱电设计施工图纸
- 23层商住楼强弱电CAD施工图纸(一类高层)
- 二类高层商住楼强弱电系统CAD施工图纸
- 15层商住楼强弱电CAD施工图纸
- 32层商住楼强弱电电气CAD施工图纸
- 14层商住楼弱电CAD图纸(火灾自动报警)
全部评论
评论网友评论仅友表达个人看法,并不表明本站同意其观点,不得发布违反法律法规的内容!
