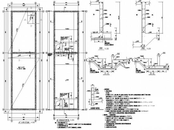
地下1层混凝土结构消防水池结构CAD施工图纸
- 发布时间:2022-09-15
- 评论次数:0
- 浏览次数:0
- 文件大小:0.29 MB
- 收藏次数:0
-
文件名称:
附件-995877978557800897870.rar
相关下载
- 钢筋混凝土结构地下消防水池结构施工图纸,共2张
- 地下1层混凝土结构消防水池结构CAD施工图纸
- 地下消防水池结构CAD施工图纸
- 地下上消防水池结构图纸(地下消防水池设计说明).dwg
- 地下1层钢混结构消防水池结构CAD施工图纸
- 地下上水池结构施工图纸(混凝土结构,共9张)
- 地下上消防水池结构设计施工图纸
- 消防水池结构大样图纸
- 下消防水池结构CAD图纸
- 消防水池结构CAD图纸
- 半地下式钢筋混凝土水池结构CAD施工图纸(7度抗震)
- 半地下式钢筋混凝土水池结构CAD施工图纸
- 水泵房消防水池混凝土结构施工方案大样图
- 钢筋混凝土结构消防水池结施施工大样图2016
- 消防水池及泵房混凝土结构施工方案大样图(CAD)
- 12层框架剪力墙结构宾馆结构CAD施工图纸(桩基础)(地下消防水池)
- 水池结构施工图纸(混凝土结构,共7张)
- 消防水池、泵池结构施工图纸
- 中学消防水池结构施工图纸
- 消防水池结构设计施工图纸
全部评论
评论网友评论仅友表达个人看法,并不表明本站同意其观点,不得发布违反法律法规的内容!
