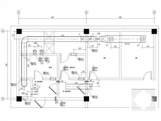
4800平米防空地下室送排风系统设计施工大样图
- 发布时间:2021-11-27
- 评论次数:0
- 浏览次数:0
- 文件大小:1.3 MB
- 收藏次数:0
- 
								文件名称: 附件-995858578598859977598.rar 附件-995858578598859977598.rar
								地下室排风系统下载
							
						- 防空地下室送排风系统设计施工CAD大样图
- 5层研发中心实验室送排风系统设计施工图纸
- 大学实验室送排风平面CAD图纸
- 地下室通、排风系统平面CAD图纸
- 5层研发中心实验室送排风系统设计施工图平面图
- 办公楼地下车库送排风CAD图纸
- 药厂排风平面施工图纸系统图
- 酒店新风排风系统CAD施工图纸
- 餐饮多层建筑暖通施工大样图纸排风系统平面图
- 空调全套图纸(排风)
- 大型商办楼防空地下室通风及防排烟系统设计施工大样图
- 洁净厂房送排风大样CAD图纸
- 7层大型综合楼暖通设计CAD施工图纸(地下室排风)
- 棚户区改造防空地下室人防电气施工大样图
- 防空地下室电气施工大样图
- 会展中心防空地下室电气施工大样图
- 中铁防空地下室暖通施工大样图纸平面图
- 商务大厦通风系统设计图_全工事超压排风
- 餐厅排风平面CAD施工图纸
- 车间净化送风、排风CAD施工图纸
全部评论
						
							评论网友评论仅友表达个人看法,并不表明本站同意其观点,不得发布违反法律法规的内容!
						
						
 
	              	 
	              	 
	              	 
	              	 
	              	