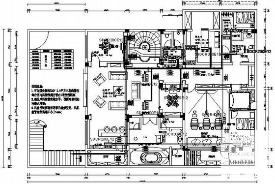
500平米2层精品别墅空调设计施工大样图
- 发布时间:2021-11-27
- 评论次数:0
- 浏览次数:0
- 文件大小:3.06 MB
- 收藏次数:0
- 
								文件名称: 附件-995857778098758578808.rar 附件-995857778098758578808.rar
								别墅施工设计下载
							
						- 2层精品别墅空调设计CAD施工大样图(地源热泵)
- 精品别墅给排水设计CAD施工方案图纸
- 欧式庭院别墅精品SU模型
- 精品酒店空调通风设计施工图(风冷热泵大院图纸)
- 4层精品酒店空调通风设计CAD施工图
- 3层精品住宅小区采暖通风设计CAD施工大样图
- 两层异形柱框架结构高档别墅结构CAD施工图纸(精品)
- 3层框架结构精品别墅结构CAD施工图纸
- 特色精品景墙CAD详大样图设计——泛亚景观
- 怀旧精品住宅小区设计施工图纸
- 别墅空调主机安装大样图.
- 别墅空调设计CAD施工图纸
- 别墅空调设计CAD图纸
- 精品家具市场观光电梯工程CAD施工大样图
- 2层山庄别墅建筑暖通空调设计CAD施工大样图
- 3层别墅地源热泵空调系统设计CAD施工大样图
- 3层小型别墅暖通空调设计CAD施工大样图
- 别墅VRV空调设计CAD大样图,含设计说明.dwg
- 10558平米17层精品住宅楼暖通设计施工大样图
- 17层精品住宅暖通设计CAD施工大样图(毛细管系统置换通风系统)
全部评论
						
							评论网友评论仅友表达个人看法,并不表明本站同意其观点,不得发布违反法律法规的内容!
						
						
 
	              	 
	              	 
	              	 
	              	 
	              	