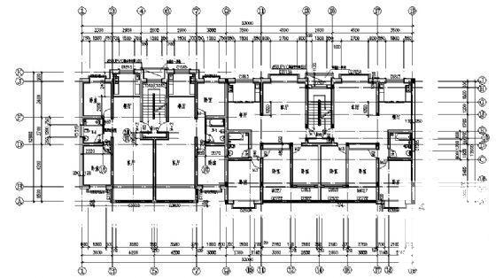
4层住宅楼建筑施工CAD图纸(框剪结构)
- 发布时间:2022-08-16
- 评论次数:0
- 浏览次数:0
- 文件大小:1 MB
- 收藏次数:0
-
文件名称:
附件-995899599879895057755.rar
相关下载
- 框剪结构住宅楼CAD施工图纸
- 29层框剪结构住宅楼建筑结构CAD施工图纸
- 19层框剪结构住宅楼结构CAD施工图纸(高层建筑)
- 12层框剪住宅楼结构CAD图纸
- 框剪结构11层住宅楼建筑施工CAD图纸
- 5层住宅楼建筑施工CAD图纸(框剪结构)
- 框剪结构6层商住综合住宅楼建筑施工CAD图纸
- 长江国际花园四号框剪结构住宅楼建筑施工CAD图纸
- 7层住宅楼建筑施工CAD图纸(框剪结构)
- 框剪结构11层住宅楼建筑施工CAD图纸
- 广场续建工程34层框剪结构住宅楼建筑施工CAD图纸
- 永丰花园住宅楼39栋7层建筑施工CAD图纸(框剪结构)
- 东方华庭16层住宅楼建筑施工CAD图纸(框剪结构)
- 11层住宅楼建筑施工CAD图纸(框剪结构)
- 7层框剪结构住宅楼建筑施工CAD图纸
- 框剪结构7层住宅楼建筑CAD施工图纸
- 7层框剪结构住宅楼建筑CAD施工图纸
- 框剪结构都市华庭高层住宅楼建筑施工CAD图纸
- 11层住宅楼建筑施工CAD图纸(框剪结构)
- 12层住宅楼建筑施工CAD图纸(框剪结构)
全部评论
评论网友评论仅友表达个人看法,并不表明本站同意其观点,不得发布违反法律法规的内容!
