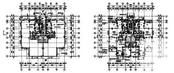
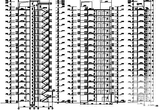
16层住宅楼建筑方案初步CAD图纸
- 发布时间:2022-08-15
- 评论次数:0
- 浏览次数:0
- 文件大小:0.73 MB
- 收藏次数:0
-
文件名称:
附件-995899576959989875088.rar
相关下载
- 15层医院住院楼建筑方案初步CAD图纸
- 建筑设计初步
- 建筑设计初步
- 学校大门建筑初步图纸
- 别墅初步建筑CAD图纸
- 现代风格主题酒店建筑初步设计方案文本(2种方案)
- 排屋的初步建筑CAD图纸
- 小区居住楼初步建筑图纸
- 不错的别墅初步建筑图纸
- 浦东花园小区二期2号住宅楼建筑初步CAD图纸
- 小区6层住宅楼建筑初步设计CAD图纸
- 小区6层住宅楼建筑初步设计CAD初设图纸
- 2层独立别墅建筑初步方案设计CAD图纸
- 现代风格海尔企业办公楼建筑初步施工方案图纸设计(CAD)
- 高层住宅楼初步电气设计
- 嘉定区商业街建筑初步设计方案说明
- 浦东花园小区二期建筑初步CAD图纸
- 星光学校天文台建筑初步图纸.dwg
- 5层汽车客运站初步设计建筑方案设计初设图纸(CAD)
- 高速收费站建筑初步设计方案设计图和平、立、剖面图
全部评论
评论网友评论仅友表达个人看法,并不表明本站同意其观点,不得发布违反法律法规的内容!
