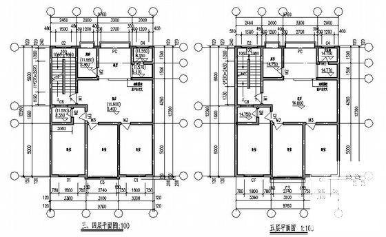
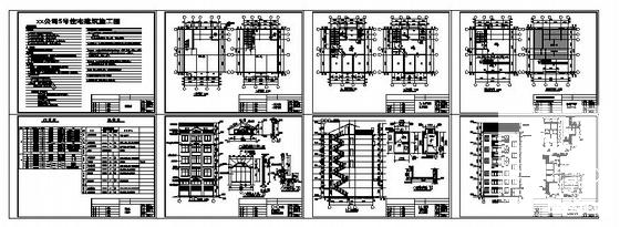
精美5层小型商住楼建筑CAD施工图纸
- 发布时间:2022-08-15
- 评论次数:0
- 浏览次数:0
- 文件大小:0.56 MB
- 收藏次数:0
- 
								文件名称: 附件-995899978685888567069.rar 附件-995899978685888567069.rar
								相关下载
							
						- 精美2层小型别墅建筑CAD图纸
- 小型精美2层别墅建筑CAD图纸
- 精美小型2层别墅建筑CAD图纸
- 小型精美7层住宅楼建筑CAD图纸
- 精美的小型别墅建筑图纸
- 精美的别墅建筑CAD图纸(简单小型)
- 精美商住楼建筑CAD施工图纸
- 精美商住楼建筑CAD施工图纸
- 精美商住楼建筑CAD施工图纸
- 精美高层商住楼的建筑CAD图纸
- 精美3层小型别墅建筑CAD施工图纸
- 精美实用的3层小型别墅建筑施工CAD图纸
- 精美2层小型别墅建筑CAD施工图纸
- 精美12层商住楼CAD施工图纸
- 精美小型的6层住宅楼建筑CAD图纸
- 精美的商住楼建筑CAD施工图纸
- 精美流行的6层商住楼建筑CAD图纸
- 精美的4层底商住楼建筑CAD图纸
- 小型4层商住楼CAD施工图纸
- 854平米小型商住楼给排水建筑施工大样图
全部评论
						
							评论网友评论仅友表达个人看法,并不表明本站同意其观点,不得发布违反法律法规的内容!
						
						
 
	              	 
	              	 
	              	