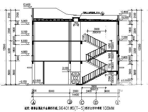
工业园公寓楼建筑设计CAD图纸
- 发布时间:2022-08-15
- 评论次数:0
- 浏览次数:0
- 文件大小:0.66 MB
- 收藏次数:0
-
文件名称:
附件-995899979687809578998.rar
相关下载
- 著名高校公寓楼建筑设计CAD图纸
- 著名高校公寓楼建筑设计CAD图纸
- 著名高校公寓楼建筑设计CAD图纸(A栋)
- 著名高校公寓楼建筑设计CAD图纸(C栋)
- 工业园配套用房建筑设计方案
- 大学公寓楼
- 工业园区新建厂区传达室建筑设计CAD施工图纸
- 5层学生公寓楼结构CAD施工方案图纸(民用建筑设计)
- 高科技工业园区内住宅楼群体建筑设计总说明.doc
- 工业园规划建筑设计说明、可行性研究报告.doc
- 公寓楼建筑CAD图纸
- 远东工业园大门设计
- 工业园管理用房施工做法
- 工业园景观绿化设计
- 酒店式公寓楼梯剖面大样
- 2层工业园厂房电气图纸
- 21层工业园幕墙竣工施工图纸
- 工业园食堂电气施工图纸cad
- 工业园绿化设计CAD施工图纸
- 工业园区道路工程设计CAD图纸
全部评论
评论网友评论仅友表达个人看法,并不表明本站同意其观点,不得发布违反法律法规的内容!
