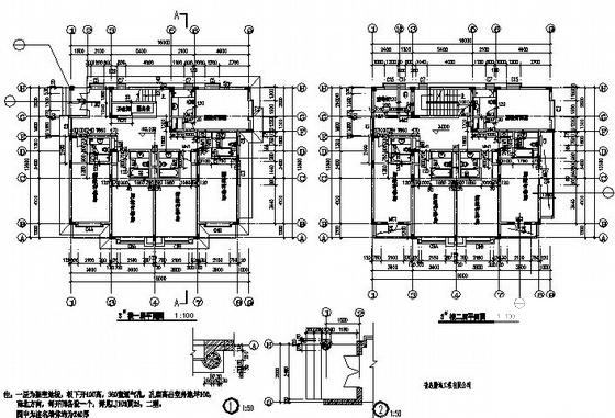
2层疗养别墅建筑CAD施工图纸
- 发布时间:2022-08-15
- 评论次数:0
- 浏览次数:0
- 文件大小:0.71 MB
- 收藏次数:0
- 
								文件名称: 附件-995899979558555800708.rar 附件-995899979558555800708.rar
								相关下载
							
						- 9层疗养院建筑施工CAD图纸
- 妇幼保健疗养性建筑给排水施工图纸平面图
- 5层精神病疗养院建筑CAD施工图纸
- 2层疗养院中心电气施工图纸
- 5层框架结构精神病疗养院建筑扩初图纸
- 2层疗养院中心电气CAD图纸
- 4层老人疗养院电气CAD图纸
- 3层疗养院建筑设计方案.dwg
- 3层疗养院建筑设计方案_CAD
- 5层精神病疗养院建筑工程项目CAD施工图纸
- 疗养院室外环境设计施工图纸
- 7层疗养院全套智能弱电施工图纸(设计全面系统大样)
- 工人温泉疗养院暖通设计CAD施工图纸(安装大样图)
- 两层疗养院暖通空调施工设计CAD图纸(风机盘管安装)
- 5层疗养院消防电气CAD施工图纸(火灾自动报警系统)
- 总工会工人疗养院温泉区给排水CAD施工图纸
- 疗养中心及老年公寓景观扩建项目施工CAD图纸
- 别墅建筑建筑CAD施工图纸
- 3层军区疗养院空调施工大样图
- 疗养院景观CAD施工大样图(亲水平台剖面)(dwg)
全部评论
						
							评论网友评论仅友表达个人看法,并不表明本站同意其观点,不得发布违反法律法规的内容!
						
						
 
	              	 
	              	 
	              	