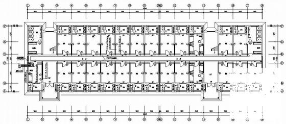
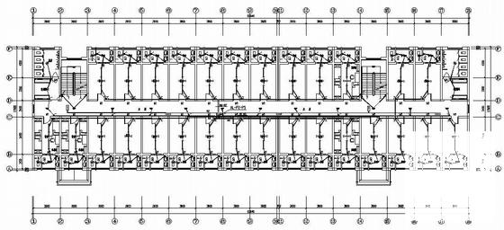
6层框架结构学生公寓电气施工图纸(高22米)
- 发布时间:2021-11-25
- 评论次数:0
- 浏览次数:0
- 文件大小:0.63 MB
- 收藏次数:0
- 
								文件名称: 附件-995856985586797857876.rar 附件-995856985586797857876.rar
								框架结构公寓下载
							
						- 学生公寓电气施工CAD图纸
- 学生公寓电气CAD图纸
- 学生公寓电气CAD施工图纸
- 学生公寓电气CAD施工图纸
- 学生公寓电气设计CAD施工图纸
- 学生公寓电气CAD施工图纸.dwg
- 4层框架结构住宅楼电气施工图纸(高17米)
- 2层框架结构食堂电气施工图纸(高7米)
- 6层框架结构住宅楼电气CAD施工图纸(高59米)
- 12层高框架结构病房施工图纸(高38米)
- 大学学生公寓电气CAD图纸
- 12层框架结构住宅楼电气设计图纸(高35米)
- 框架结构学生公寓楼结构设计施工图纸
- 6层框架结构学生公寓结构CAD施工图纸(2015)
- 框架结构学生公寓结构CAD施工图纸(6层独立基础)
- 金岸学生公寓二期学生公寓E栋施工CAD图纸
- 小学电气CAD施工图纸(高12.3米)
- 学生公寓强电
- 高供高量配电工程箱式变电站电气CAD图纸
- 地上5层办公综合楼电气CAD施工图纸(高22.2米)(框架结构)
全部评论
						
							评论网友评论仅友表达个人看法,并不表明本站同意其观点,不得发布违反法律法规的内容!
						
						
 
	              	 
	              	 
	              	