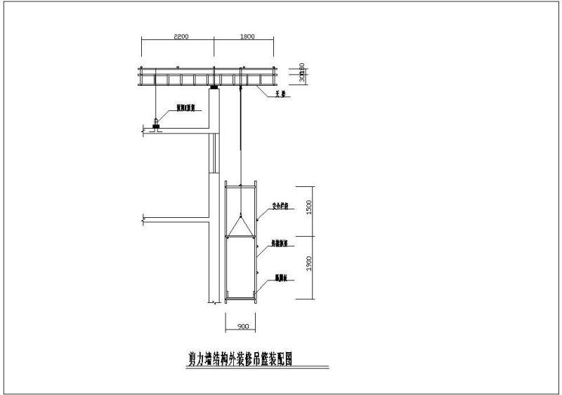
剪力墙结构外装修吊篮装配节点构造详图纸
- 发布时间:2022-02-20
- 评论次数:0
- 浏览次数:0
- 文件大小:0.03 MB
- 收藏次数:0
-
文件名称:
附件-996055057979059956.rar
相关下载
- 框架结构外装修吊兰装配节点构造详图纸
- 结构节点构造详施工图纸
- 国内市大型商业大厦外幕墙电动吊篮施工方案(安全保证措施)
- 砌体结构构造大样节点构造详施工图纸
- 剪力墙平法节点构造详施工图纸扶壁柱构造
- ZW50外平开窗装配图纸
- 装配式CAD节点图纸(装配式剪力墙结构)
- 煤仓钢结构节点构造详施工图纸
- 外挑架搭设节点构造详图纸
- 外挑架搭设示意节点构造详图纸
- 外飘窗大样节点构造CAD详图纸
- 别墅外檐节点构造详图纸cad
- 仓外钢梯平台节点构造详图纸cad
- 多层外装修石材幕墙设计图
- 二级剪力墙配筋详表节点构造详图纸
- 剪力墙、柱节点构造CAD详施工图纸.dwg
- 剪力墙住宅墙体节点构造CAD详大样图.dwg
- 立体车库钢结构外框架及节点构造详细设计CAD图纸
- 单斜V节点构造详设计图纸
- 管道钢支架节点构造CAD详施工图纸
全部评论
评论网友评论仅友表达个人看法,并不表明本站同意其观点,不得发布违反法律法规的内容!
