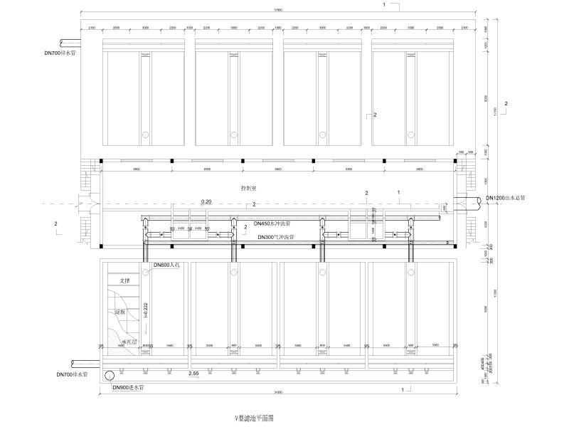
自来水厂工艺设计施工图纸平面布置图
- 发布时间:2022-02-20
- 评论次数:0
- 浏览次数:0
- 文件大小:1.32 MB
- 收藏次数:0
- 
								文件名称: 附件-996595565769589595.rar 附件-996595565769589595.rar
								相关下载
							
						- 20万吨自来水厂工艺施工图纸设计平面布置图
- 自来水厂CAD图纸工艺图纸
- 自来水厂工艺设计CAD施工图纸(附70余页说明书)(泵房平面布置图)
- 自来水厂反应沉淀池工艺设计施工图纸
- 20万吨自来水厂工艺施工图纸设计(附58页设计方案).dwg
- 屠宰厂废水处理工艺设计CAD图纸(平面布置图)
- 洗浴中心水暖工艺设计CAD图纸(平面布置图)
- 自来水厂工艺设计施工图纸(附70余页说明书).dwg
- 游泳池过滤工艺流程施工图纸平面布置图
- 地产供热工程换热站工艺施工图纸平面布置图及系统图
- 食品废水处理工程工艺图纸平面布置图
- 工业园水厂给排水工艺图纸(总平面布置图)
- 工艺冷却系统机房组CAD图纸(平面布置图)
- 8万吨/天配水泵房工艺设计CAD施工图纸(平面布置图)
- 柠檬酸盐工程废水治理项目UASB工艺平面布置图
- 20万吨给水厂工艺设计全套施工图及平面布置图
- 20万吨自来水厂工艺CAD施工图纸设计(附58页设计方案)(饮用水卫生标准)
- 自来水厂处理工程施工图纸及供电系统布置图
- 综合制剂车间工艺照明平面
- 大学游泳池工艺设计CAD平面图
全部评论
						
							评论网友评论仅友表达个人看法,并不表明本站同意其观点,不得发布违反法律法规的内容!
						
						
 
	              	 
	              	