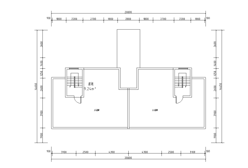
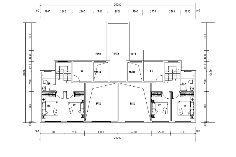
叠墅+洋房户型图纸设计2021年平面图
- 发布时间:2022-02-20
- 评论次数:0
- 浏览次数:0
- 文件大小:1.09 MB
- 收藏次数:0
-
文件名称:
附件-996585565969899777.rar
相关下载
- 花园洋房、叠墅产品研发设计
- 4-11层电梯入户洋房合院叠墅户型
- 2020电梯入户洋房合院叠墅户型4-11层65套_CAD
- 洋房叠墅产品线研发(第一轮成果).pdf
- 洋房叠墅产品线研发(第二轮成果).pdf
- loft公寓商墅户型设计平面图纸_公寓户型设计详图_cad
- 大面宽洋房户型平面图纸设计.dwg
- 华侨城叠拼住宅户型设计平面图
- 顶层跃层花园洋房户型平面图纸.dwg
- 24层花园洋房户型平面图纸.dwg
- 多层洋房170户型平面图纸_cad
- 欧陆叠拼洋房多层住宅施工方案图纸CAD平面图
- 叠拼洋房住宅建筑施工方案图纸CAD平面图
- 平地别墅小区院墅平面户型设计图纸
- 1梯2户洋房户型平面图纸设计和平面图
- 创新洋房户型平面图纸设计和cad平面图
- 小面宽洋房户型平面图纸设计和cad平面图
- 金地宝山洋房户型图纸设计
- 5层叠拼别墅户型平面图纸(大户型).dwg
- 高层-联排洋房户型设计汇总
全部评论
评论网友评论仅友表达个人看法,并不表明本站同意其观点,不得发布违反法律法规的内容!
