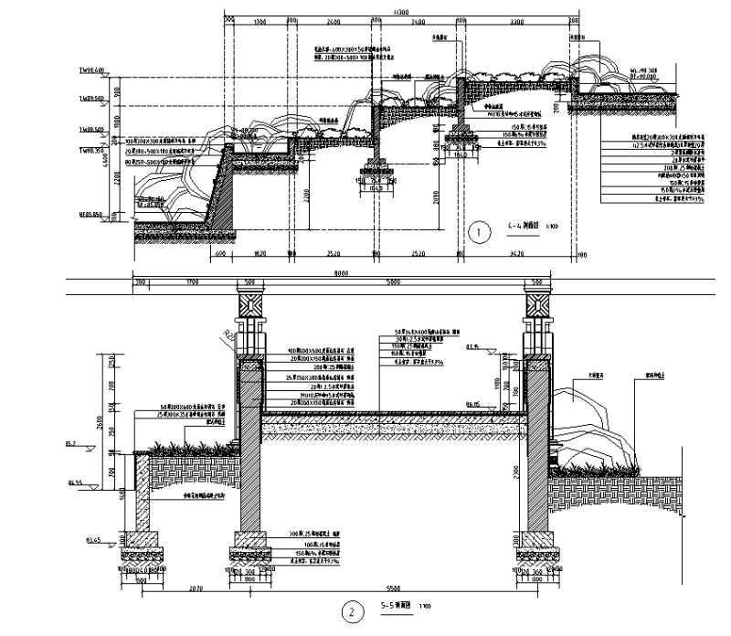
住宅小区主入口做法详图纸设计平面图及大样图,剖面图
- 发布时间:2022-02-20
- 评论次数:0
- 浏览次数:0
- 文件大小:2.12 MB
- 收藏次数:0
-
文件名称:
附件-996579098097869985.dwg
相关下载
- 住宅小区次入口做法详图纸设计平面图及大样图,剖面图
- 现代住宅小区主入口镜面水景详大样图设计
- 特色入口跌水池做法详大样图设计
- 小区主入口施工详全套设计CAD图纸
- 主入口特色景墙做法详图纸设计
- 三联新古典风格主入口跌水水景详大样图设计
- 居住区主入口岗亭做法CAD详图纸
- 住宅小区主入口大门结构施工图纸
- 现代风格住宅小区入口镜面水景节点详大样图设计
- 主入口结构详图纸剖面图
- 人行出入口做法详图纸平面图及立面图,剖面图
- 小区主入口特色水景做法CAD大样图纸(中英文)(透视图)
- 某公园道路做法大样图主路平面图及剖面图
- 主入口钢筋砼结构平面布置图及剖面图
- 居住区自行车库入口做法详大样图
- 小区入口及旱地广场施工大样图纸平面图及剖面图
- 坐凳树池做法详大样图设计
- 现代风格水池做法详大样图设计
- 特色花池坐凳做法详大样图设计
- 入口跌水池做法详图纸cad平面图
全部评论
评论网友评论仅友表达个人看法,并不表明本站同意其观点,不得发布违反法律法规的内容!
