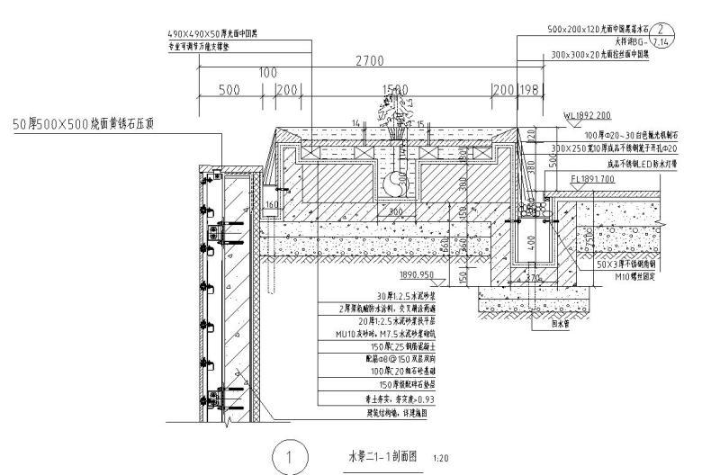
现代风格住宅小区入口镜面水景节点详大样图设计
- 发布时间:2021-12-07
- 评论次数:0
- 浏览次数:0
- 文件大小:0.46 MB
- 收藏次数:0
-
文件名称:
附件-996955996595087579.dwg
现代风格住宅设计下载
- 现代住宅小区主入口镜面水景详大样图设计
- 三联新古典风格主入口跌水水景详大样图设计
- 经典现代简欧风格-喷泉水景景墙CAD详大样图设计
- 镜面水水景CAD详图纸设计
- 现代风格水池做法详大样图设计
- 镜面水景CAD施工图纸
- 特色欧式风格水景设计CAD详大样图——泛亚景观
- 售楼部现代风格跌水水景详图纸设计
- 现代风格特色跌水景墙详图纸设计
- 住宅区现代风格水景详图纸设计
- 筑友售楼部镜面水中下沉休息空间详大样图设计
- 现代风格主入口特色景墙详图纸设计
- 经典现代简欧风格-单体景墙CAD详大样图设计
- 经典现代简欧风格-恒大华府景墙CAD详大样图设计
- 经典现代简欧风格-特色灯具CAD详大样图设计
- 经典现代简欧风格-高端景墙CAD详大样图设计
- 现代风格住宅小区全套施工设计详图
- 现代风格住宅小区树池坐凳设计
- 经典现代简欧风格-新古典风格景墙CAD详大样图设计
- 方形喷泉水景设计CAD详大样图
全部评论
评论网友评论仅友表达个人看法,并不表明本站同意其观点,不得发布违反法律法规的内容!
