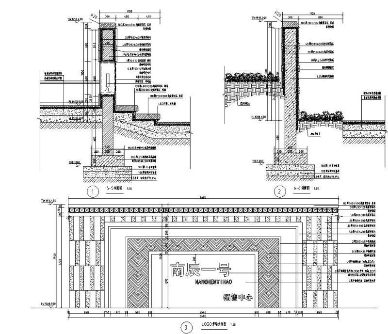
主入口特色景墙做法详图纸设计
- 发布时间:2021-12-09
- 评论次数:0
- 浏览次数:0
- 文件大小:1.75 MB
- 收藏次数:0
-
文件名称:
附件-996088909787755959.dwg
景墙设计图纸下载
- 现代风格主入口特色景墙详图纸设计
- 特色入口跌水池做法详大样图设计
- 入口标识景墙施工做法
- 主入口景墙、水景详图纸设计
- 小区入口景墙做法详细设计CAD图纸
- 小区入口欧式水景景墙施工做法
- 小区主入口特色水景做法CAD大样图纸(中英文)(透视图)
- 小区主入口施工详全套设计CAD图纸
- 特色花池坐凳做法详大样图设计
- 特色精品景墙CAD详大样图设计——泛亚景观
- 居住区主入口岗亭做法CAD详图纸
- 特色景墙CAD施工图纸
- 特色景墙CAD施工图纸
- 特色景墙CAD施工图纸
- 特色景墙CAD施工图纸
- 特色景墙施工CAD详图纸
- 公园特色景墙施工CAD图纸
- 特色砖雕景墙施工CAD图纸
- 特色景墙施工CAD图纸
- 特色景墙施工CAD图纸
全部评论
评论网友评论仅友表达个人看法,并不表明本站同意其观点,不得发布违反法律法规的内容!
