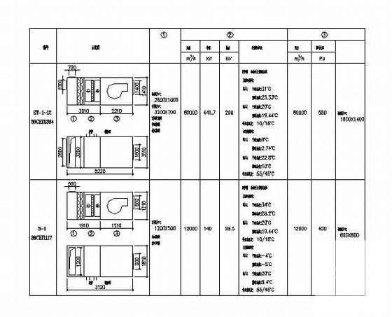
汽车发动机厂联合厂房空调通风图纸(全套)
- 发布时间:2021-11-25
- 评论次数:0
- 浏览次数:0
- 文件大小:0.78 MB
- 收藏次数:0
-
文件名称:
附件-995858885958776859607.rar
厂房空调通风下载
- 联合厂房空调及通风排烟系统设计施工CAD图纸(风冷热泵)
- 汽车织物厂空调通风设计CAD图纸(压缩式冷水机组)
- 厂房全套空调通风设计施工图纸
- 门式刚架专用汽车联合厂房结构CAD施工图纸(吊车梁)
- 门式刚架专用汽车联合厂房结构CAD施工图纸
- 厂厂房电气全套CAD图纸
- 4层汽车站通风空调施工图纸
- 钢结构联合厂房CAD图纸
- 发动机厂房电气设计方案.doc
- 制品厂综合楼空调通风图纸
- 纺织厂空调设计全套CAD图纸.dwg
- 3层汽车零部件工业园压铸联合厂房建筑施工CAD图纸
- 2层汽车零部件基地建设联合厂房建筑结构CAD施工图纸
- 3层汽车零部件工业园压铸联合厂房建筑施工CAD图纸
- 厂房空调通风布置设计CAD图纸
- 厂房多联机全套空调CAD图纸
- 钢排架及局部钢框架汽车发动机厂结构CAD施工大样图(建筑大样图韩国独资).dwg
- 8层电子工业厂房空调通风设计全套CAD施工大样图
- 国内联合厂房吊装施工方案(平面尺寸)
- 超市通风空调全套标准施工大样图
全部评论
评论网友评论仅友表达个人看法,并不表明本站同意其观点,不得发布违反法律法规的内容!
