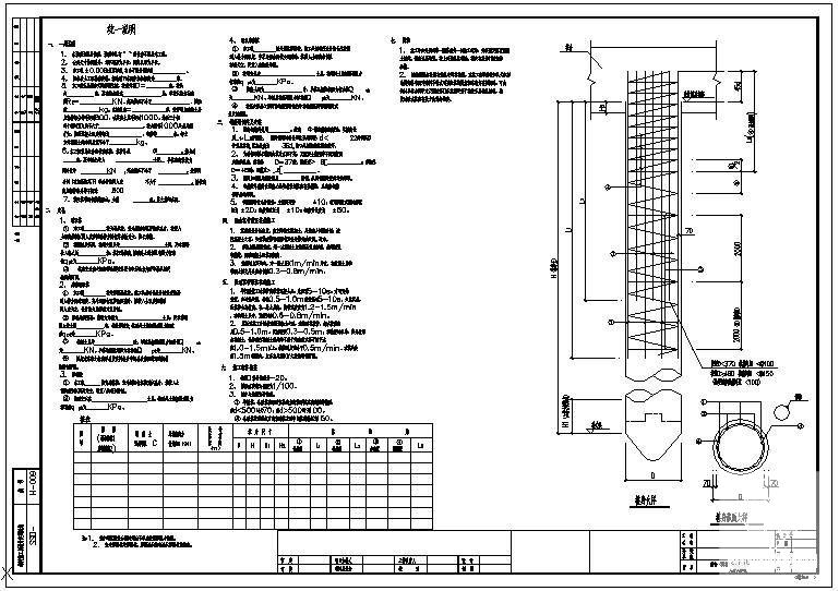
锤击(振动)沉管灌注桩大样及桩表节点构造施工图集
- 发布时间:2022-02-20
- 评论次数:0
- 浏览次数:0
- 文件大小:0.03 MB
- 收藏次数:0
-
文件名称:
附件-996056755769507967.rar
相关下载
- 锤击(振动)沉管灌注桩设计说明
- 振动沉管灌注桩设计说明
- 大口径桩承台大样及表节点构造施工图集
- 锤击式沉管灌注桩基础节点构造详图纸布置图
- 静压振动沉管灌注桩设计说明与详图纸cad
- 灌注桩承台大样及图纸表2018
- 沉管灌注桩大样节点构造详图纸cad
- 沉管灌注桩构造详图纸cad
- 沉管灌注桩节点详图纸cad
- 锤击管桩基础节点构造详图纸cad
- 沉管灌注桩详图纸
- 钻(冲)孔桩大样及桩表节点构造详施工图
- 沉管灌注桩设计说明及节点CAD详图纸
- 高速公路振动沉管粒料桩加固涵基一般设计CAD图纸
- 特殊路基处理振动沉管粒料桩加固涵基、软基设计CAD图纸
- 灌注桩基础表和管桩基础表
- 钻(冲)孔桩桩表及大样节点构造设计详图纸
- 钻(冲)孔桩桩表及大样节点构造设计详图纸
- 钻孔桩大样及桩表节点构造设计详图纸
- 商住楼钻孔桩大样及桩表节点构造详细设计CAD图纸
全部评论
评论网友评论仅友表达个人看法,并不表明本站同意其观点,不得发布违反法律法规的内容!
