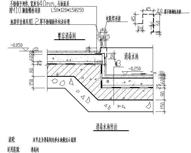
消毒间内涉水池做法示意节点构造设计详图纸
- 发布时间:2022-02-20
- 评论次数:0
- 浏览次数:0
- 文件大小:0.03 MB
- 收藏次数:0
- 
								文件名称: 附件-996056757575777775.rar 附件-996056757575777775.rar
								涉水池做法示意图下载
							
						全部评论
						
							评论网友评论仅友表达个人看法,并不表明本站同意其观点,不得发布违反法律法规的内容!
						
						 附件-996056757575777775.rar
 附件-996056757575777775.rar