admin
|
退出
|
登录
|
注册
|
0
积分
|
赚取积分
|
VIP领取积分
|
帮助中心
|
首页
【知石网】是一个专业资料分享学习平台,本站提供大量施工技术文档和设计下载。
首页
施工图纸
施工方案
施工组织
施工交底
合同表格
建筑结构
节点详图
毕业设计
平面图纸
景观设计
电气知识
环保知识
您当前位置:
首页
»
其他文档
»
其他资料
»
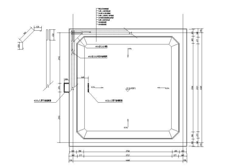
山体蓄水池做法详图纸cad
山体蓄水池做法详图纸cad
资料简介
赚取积分
搜索更多资源
附件详情:
山体蓄水池做法详图
山体蓄水池做法详图 (1).png
山体蓄水池做法详图 (2).png
山体蓄水池做法详图 (3).png
以下是附件的其中一部分截图,共3张,您也可以
搜索
更多您想要的资源
山体蓄水池做法详图 (1)
山体蓄水池做法详图 (2)
山体蓄水池做法详图 (3)
以上是部分截图,请下载附件后查看完整高清内容
发布时间:2024-01-02
评论次数:0
浏览次数:0
文件大小:0.12 MB
收藏次数:0
文件名称:
附件-996858689799985795.dwg
下载信息
加入收藏
赚取积分
立即下载
对不起,系统繁忙,请稍后再试,或联系管理员
对不起,您的积分余额不足,请
充值积分
恭喜购买成功!请
下载文件
相关下载
50方钢筋砼蓄水池设计CAD详施工图纸
特色入口跌水池做法详大样图设计
坐凳树池做法详大样图设计
现代风格水池做法详大样图设计
特色花池坐凳做法详大样图设计
廊架施工做法CAD详大样图
溪涧施工做法CAD详大样图
小区停车位做法CAD详大样图
流水壁做法CAD详大样图
采光井装饰做法详大样图.
流水壁做法CAD详大样图
B型山体别墅建筑CAD图纸
A型山体别墅建筑CAD图纸
山体别墅建筑CAD施工图纸
山体隧道专项施工方案
山体别墅庭院景观su模型设计
c型山体别墅建建筑CAD图纸
小区中心花园山体植物配置CAD图纸
居住区自行车库入口做法详大样图
屋顶花园条形坐凳做法详大样图设计
全部评论
评论
网友评论仅友表达个人看法,并不表明本站同意其观点,不得发布违反法律法规的内容!
下载排行
架空层树池坐凳做法详大样图设计
景观细部施工|车库顶板上水泵井做法CAD详大样图
S型景墙节点做法CAD详大样图
生态停车位施工做法CAD详大样图
29个地面常用做法节点CAD详大样图
停车场铺装做法CAD详大样图
带骨架挂网喷射混凝土护坡做法CAD详大样图
节点CAD详大样图(玻璃幕墙其他幕墙防水做法).dwg
蓄水池大样图纸2017
大桥墩承台防护施工方案(山体滑坡)
下载推荐
小区山体公园护坡CAD施工大样图
山体公园修建性详细规划设计方案
800m蓄水池
坡屋顶结构做法坡屋面梁制施工图纸规则和构造详施工图纸
蓄水池定型设计CAD图纸节点详细图纸
100立方米圆形蓄水池图纸
水箱及蓄水池防水大样图纸
500立方米蓄水池CAD图纸
钢砼蓄水池设计CAD图纸
蓄水池施工设计CAD图纸集
网站首页
|
信息产业部备案/许可证编号:苏ICP备2021052619号-1
苏公网安备:32041102001778号
本站所有内容均由网友自主分享,仅供学习和参考,如有侵权内容或者违法行为,请及时联系站长删除。