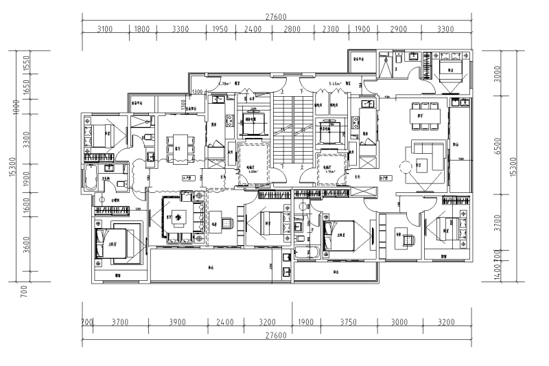
富力大高层改造前后户型设计
- 发布时间:2022-02-20
- 评论次数:0
- 浏览次数:0
- 文件大小:0.73 MB
- 收藏次数:0
-
文件名称:
附件-996559770087678650.dwg
相关下载
- 富力城住宅楼外墙装修悬挑式脚手架设计与施工
- 小户型变“大〞——高层中小户型住宅楼设计探讨
- 生产力大楼大跨度钢结构设计.pdf
- 富祥中心高层商住楼的结构设计.pdf
- 富隆城投资发展有限公司富隆城项目.dwg
- 富凯大厦主体结构设计.pdf
- 从外滩建筑改造更新看历史街区的生命力再造
- 低密度社区-大独栋-节点户型图纸设计
- 高层建筑工程结构设计探析(地震力).pdf
- 200多米超高层天力洲际酒店建筑设计方案文本.pdf
- ps修图纸前后大变样(效果图)
- 智富名品城11号和12号楼超限高层结构设计.pdf
- 高层户型图纸-小高层点式户型.dwg
- 高层小户型、跃层、户型图纸设计
- 高层户型图纸-三室户户型设计.dwg
- 高层户型CAD图纸-四室户户型设计
- 百富村中桥CAD施工图纸
- 2019大院标准户型库39套-
- 东胜大吾川别墅-洋房-住宅户型合集
- 大底盘多塔复杂高层结构设计
全部评论
评论网友评论仅友表达个人看法,并不表明本站同意其观点,不得发布违反法律法规的内容!
