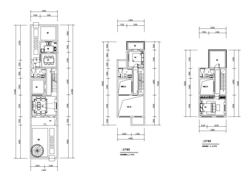
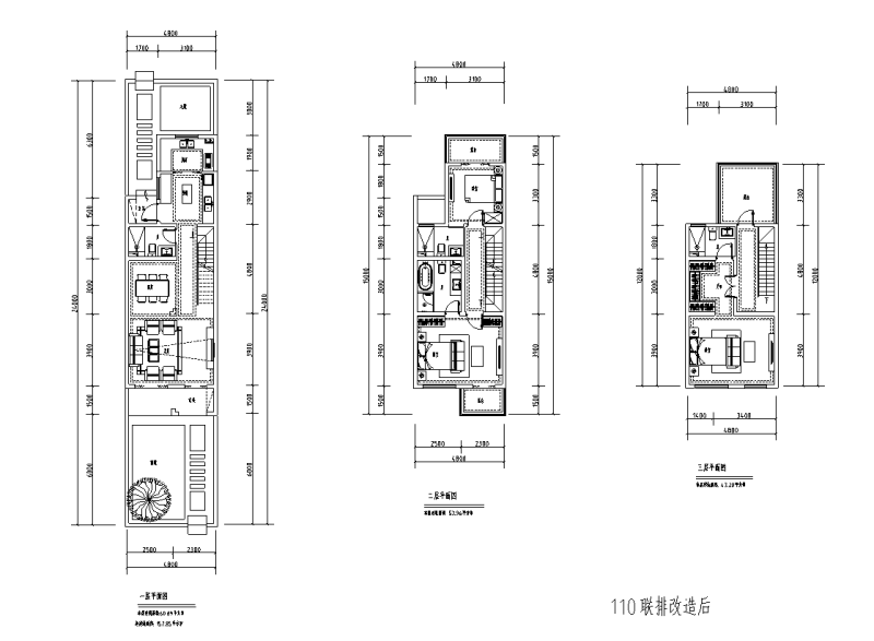
东胜大吾川别墅-洋房-住宅户型合集
- 发布时间:2021-12-23
- 评论次数:0
- 浏览次数:0
- 文件大小:1.98 MB
- 收藏次数:0
-
文件名称:
附件-996550869687966759.dwg
别墅洋房户型合集下载
- 别墅、洋房户型分析集锦
- 知名企业太仓户型-洋房+中高层户型合集
- 知名企业户型洋房+高层户型图纸合集
- 经典户型合集_CAD
- 高层-联排洋房户型设计汇总
- 金地宝山洋房户型图纸设计
- 经典高层板式住宅户型合集_CAD
- 经典高层塔式住宅户型合集_CAD
- 经典高层住宅户型合集_CAD
- 多形式两层别墅住宅楼户型合集.dwg
- 洋房错层跃户型图纸设计
- 知名企业跃层洋房户型图纸设计
- 现代风高层双拼洋房户型图纸设计
- 洋房+多层公寓建筑户型图纸设计
- 6+1F洋房户型图纸设计
- 经济多层花园洋房户型图纸单体组合.dwg
- 6层花园洋房户型图纸.dwg
- 多层情景洋房户型设计CAD图纸.dwg
- 7层错层花园洋房户型图纸.dwg
- 顶层跃层花园洋房户型平面图纸.dwg
全部评论
评论网友评论仅友表达个人看法,并不表明本站同意其观点,不得发布违反法律法规的内容!
