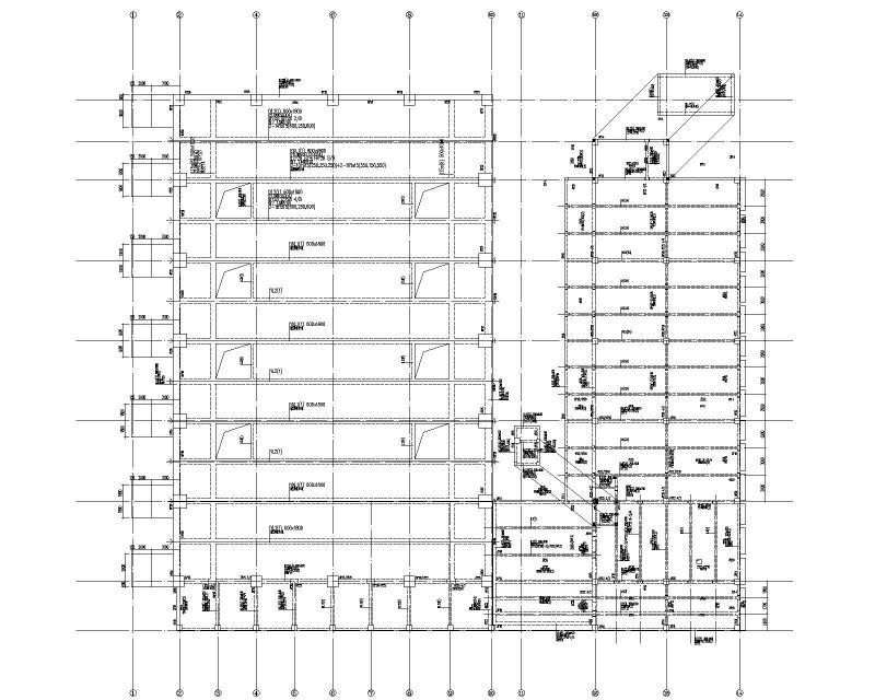
科技产业中心结构平面布置图及构造图,大样图
- 发布时间:2022-02-20
- 评论次数:0
- 浏览次数:0
- 文件大小:11.97 MB
- 收藏次数:0
- 
								文件名称: 附件-996577556757865785.rar 附件-996577556757865785.rar
								科技产业中心平面图下载
							
						- 科技产业中心暖通施工图纸平面图及排烟系统图
- 17层科技产业中心电气照明平面图及配电系统图
- 科技产业中心给排水施工大样图平面图及原理图
- 汽车科技产业园暖通施工图纸通风系统平面图
- 汽车科技产业园员工宿舍暖通施工图纸cad平面图
- 汽车科技产业园宿舍楼给排水施工图纸cad平面图
- 生态科技产业园丁类多层厂房给排水施工图纸cad平面图
- 中心消防喷洒平面图纸.dwg
- 6层科技产业园地面辐射及防排烟系统
- 科技产业园污水提升泵站电气CAD施工图纸(高压配电系统)
- 京泉华科技产业园(一期)
- 科技产业园地面辐射及防排烟系统(甲院出品)
- 科技产业园区号路市政工程设计CAD图纸
- 科技产业园污水提升泵站全套电气施工图纸
- 科技产业园4层会所建筑施工CAD图纸
- 6层政务中心应急消防平面图纸
- 商务中心坡道结构详图纸平面图
- 湖生态园垂钓中心平面图纸
- 物流中心冷库电气平面图纸
- 研发中心空调控制平面图纸.dwg
全部评论
						
							评论网友评论仅友表达个人看法,并不表明本站同意其观点,不得发布违反法律法规的内容!
						
						
 
	              	 
	              	 
	              	 
	              	 
	              	