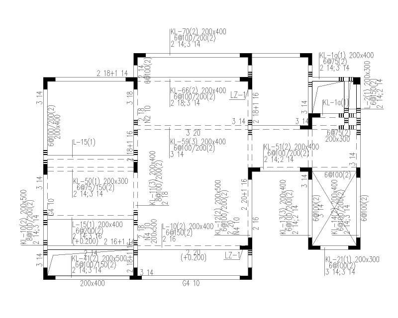
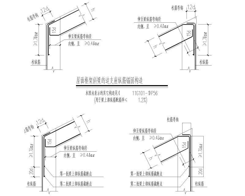
多层全现浇异形柱框架结构别墅结施平面布置图及大样图
- 发布时间:2022-02-20
- 评论次数:0
- 浏览次数:0
- 文件大小:6.34 MB
- 收藏次数:0
-
文件名称:
附件-996570688689678885.dwg
现浇异形柱别墅施工图下载
- 3层异形柱框架别墅结构施工图纸
- 2层异形柱别墅结构CAD施工图纸
- 异形柱框架别墅结构CAD施工图纸
- 异形柱框架别墅结构图纸
- 异形柱框架别墅结构施工图纸,共6张施工图纸
- 3层异形柱框剪别墅结构施工图纸(建筑施工图纸)
- 3层框架异形柱别墅结构设计施工图纸
- 两层框架结构异形柱别墅结构施工图纸
- 两层异形柱框架结构别墅结构设计施工图纸
- 3层异形柱框架联排别墅结构施工图纸
- 3层异形柱框架结构旅游度假村别墅结构施工图纸
- 2层异形柱框架结构别墅结构施工图纸
- 两层异形柱框架结构高档别墅结构施工图纸(品)
- 异形柱框架结构别墅结构CAD施工图纸(、14张)
- 3层异形柱框架结构别墅结构CAD施工图纸(建筑图纸)
- 异形柱框架别墅结构CAD施工图纸(平法)
- 坡屋顶异形柱框架别墅结构CAD施工图纸(平面布置图)
- 2层异形柱框架结构双拼别墅结构CAD施工图纸(独立基础)
- 3层异形柱框架别墅结构CAD施工图纸
- 2层框架异形柱结构别墅结构CAD施工图纸(坡屋顶)
全部评论
评论网友评论仅友表达个人看法,并不表明本站同意其观点,不得发布违反法律法规的内容!
