大厦通风、防排烟及中央空调设计施工图平面图

  • 设计详细说明:有
  • 建筑类别:办公
  • 建筑设计面积:35311.89平方米
  • 图纸设计深度:施工图
  • 图纸设计格式:CAD2000
  • 设计年代:近代
  • 设计内容:空调,通风
  • 节点大样:制冷机组
  • 项目所在地:贵州
项目概要:该项目为 贵州省某大厦通风、防排烟及中央空调设计施工图 。全楼建筑面积约35311.89平方米,建筑高度99.6m。地下室为车库,面积约11886.5平方米,设置机械通风、排烟系统;塔楼为办公,建筑面积约23425.39平方米,空调面积16535.08平方米,夏季空调逐时叠加最大负荷约2452.18kW,选型考虑80%的同时使用系数,故主机冷量按1970kW选型。空调主机选用直燃型溴化锂冷温水机组,空调冷热源由两台置于屋面机房内的该机组提供,冷温水循环泵、冷却水循环泵及冷却塔均由主机配套供应。
设计范围:
1. 办公区域空调系统设计;
2. 地下车库通风及防排烟系统设计;
3. 屋顶电梯机房、地下设备用房(配电房、水泵房)及公共卫生间的通风系统设计;
4. 防烟楼梯间及合用前室防排烟系统设计。
部分图纸展示:
1层空调风平面.jpg
1层空调水平面.jpg
2~4层空调水平面.jpg
12层空调风平面.jpg
屋顶空调水平面.jpg
直燃机房大样.jpg
以下是附件的其中一部分截图,共6张,您也可以 搜索 更多您想要的资源
  • 1层空调风平面
    1层空调风平面
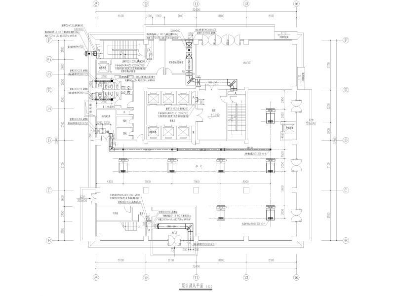
  • 1层空调水平面
    1层空调水平面
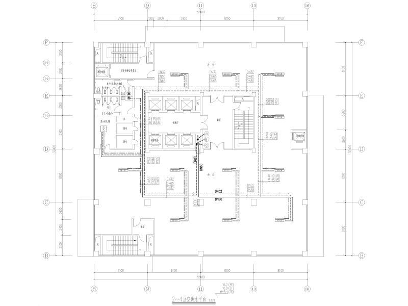
  • 2~4层空调水平面
    2~4层空调水平面
  • 12层空调风平面
    12层空调风平面
  • 屋顶空调水平面
    屋顶空调水平面
  • 直燃机房大样
    直燃机房大样
以上是部分截图,请下载附件后查看完整高清内容
网站首页  | 
本站所有内容均由网友自主分享,仅供学习和参考,如有侵权内容或者违法行为,请及时联系站长删除。