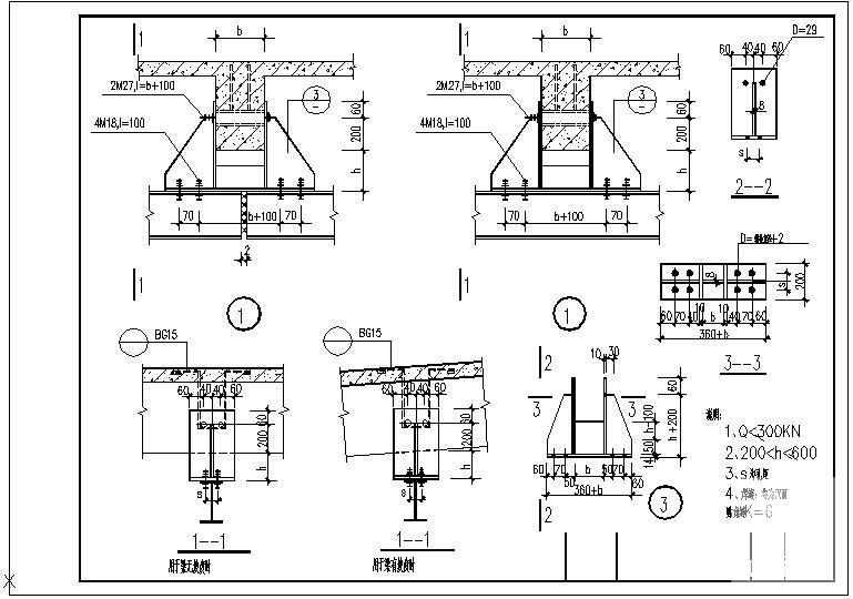
悬挂运输设备轨道梁与楼面、屋架连接的通用节点构造详图纸
- 发布时间:2022-02-20
- 评论次数:0
- 浏览次数:0
- 文件大小:2.87 MB
- 收藏次数:0
-
文件名称:
附件-996057679099907969.rar
悬挂运输设备图下载
- 悬挂运输设备轨道98G359-2局部修改版
- 悬挂运输设备轨道98G359-4局部修改版
- 悬挂运输设备轨道98G359-1局部修改版
- 刚架悬挂吊车节点CAD详图纸
- LX3tX8.5m-7m悬挂起重机悬挂单梁详细设计CAD图纸
- 带悬挂吊车的钢桁架结构设计.pdf
- 钢箱梁斜拉桥悬挂式检查车竣工CAD图纸(梁底)
- 一套悬挂链曝气工艺设计CAD图纸
- 悬挂式脚手架施工方案(详细计算书).docx
- 新型钢梁悬挂式支模体系施工工法.docx
- 悬挂吊车轨道梁在屋架节点的连接构造CAD详图纸
- 建筑工程悬挂外倾式点支全玻璃幕墙施工工法(公共建筑)
- 花架做法详图纸立面图及平面图,节点图,剖面图
- 6×14m简支板桥大样图构造图及桥台配筋图,布置图
- 玻璃景墙施工图纸平面图及立面图侧面图及布置图
- 花架全套施工图纸平面图及立面图、展开图、连接图
- 九泉叠水施工图纸平面图及立面图、剖面图、基础图
- 林荫花架施工图纸平面图及立面图、剖面图、铺装图
- 扇形叠水施工详图纸平面图及立面图、剖面图、断面图
- 两种跌水设计图纸平面图及立面图、剖面图、断面图
全部评论
评论网友评论仅友表达个人看法,并不表明本站同意其观点,不得发布违反法律法规的内容!
