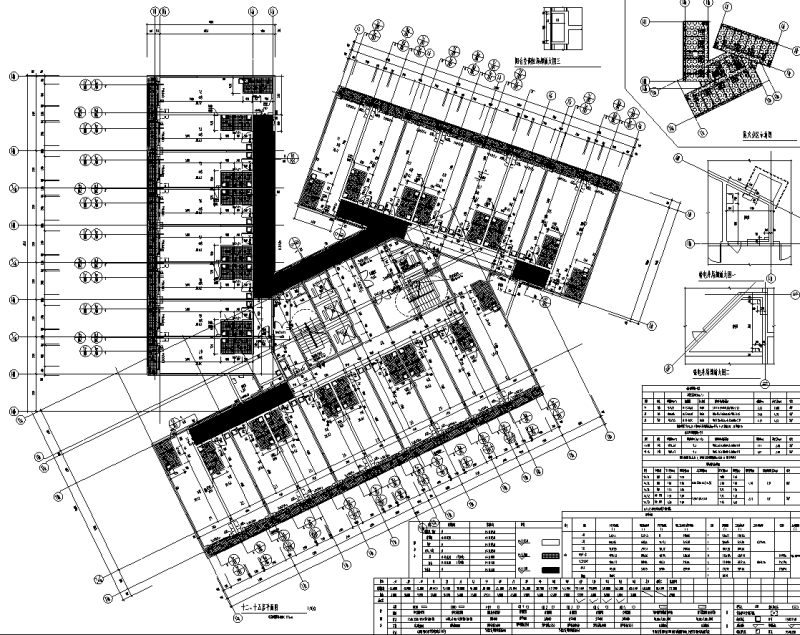
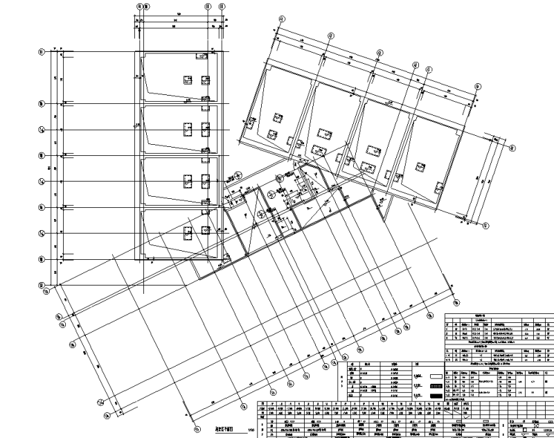
花园1栋户型户型大样图设计平面图及剖面图,立面图
- 发布时间:2022-02-20
- 评论次数:0
- 浏览次数:0
- 文件大小:14.95 MB
- 收藏次数:0
- 
								文件名称: 附件-996585568585559990.rar 附件-996585568585559990.rar
								相关下载
							
						- 花园5栋户型户型大样图设计平面图及立面图
- 花园2-4栋户型户型大样图设计平面图及立面图
- 花园2层幼儿园户型大样图设计平面图及剖面图,立面图
- 18层花园7-10栋户型户型大样图平面图
- 50层高层住宅户型图纸设计平面图及剖面图,立面图
- 现代风住宅+商业户型图纸设计平面图及剖面图,立面图
- T2-135+168+127住宅户型大样图设计平面图及剖面图,立面图
- T3-116+116+100住宅户型大样图设计平面图及剖面图,立面图
- 新古典风高层洋房住宅户型设计平面图及大样图,剖面图
- 6套住宅独栋别墅户型设计平面图及大样图,剖面图
- 顶层跃层花园洋房户型平面图纸.dwg
- 24层花园洋房户型平面图纸.dwg
- 1梯2户高层住宅户型施工指引大样图平面图及剖面图,立面图
- 1梯3户高层住宅户型施工指引大样图平面图及剖面图,立面图
- 1梯4户高层住宅户型施工指引大样图平面图及剖面图,立面图
- 碧海花园户型设计图纸.dwg
- 休闲座大样图纸平面图及侧立面图,剖面图
- 古塔施工大样图纸平面图及剖面图,立面图
- 某古典栏杆大样图纸平面图及立面图,剖面图
- 51层1梯5至8户高层住宅户型图纸设计平面图及剖面图,立面图
全部评论
						
							评论网友评论仅友表达个人看法,并不表明本站同意其观点,不得发布违反法律法规的内容!
						
						
 
	              	 
	              	 
	              	 
	              	 
	              	